
Zwetstraat , 2515 VE Den Haag
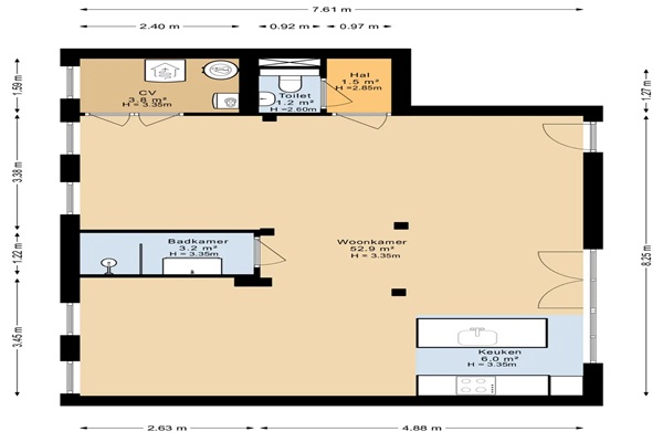
Indeling Via de voordeur kom je direct de hoofdruimte van de woning in. Deze loft woning bestaat uit 1 grote ruimte waarin gewoond en geslapen wordt. Voorzien van een een fraai keukeneiland met Siemens inbouwapparatuur (vaatwasser, koelvriescombinatie. inductie kookplaat, oven, afzuigkap). Separaat is de badkamer met inloopdouche en wastafel met meubel en handdoekenradiator. Verder een apart toilet en een grote technische ruimte met wasmachineaansluiting en bergingsmogelijkheden. Het zonnige terras (Z) completeert de woning (deels nog aan te leggen). Erg geschikt voor 1 persoon of een stel
Huurprijs p.m. :
Oppervlakte :
Kamers :
Badkamers :
Slaapkamers :
€ 1.625,00
68 m2
1
1
1
Woningtype :
Interieur :
Beschikbaar vanaf :
Beschikbaar tot :
Huisgenoot :
Studio
n/a
01-10-2025
n/a
0
Badkamer :
Toilet :
Keuken :
Woonkamer :
Internet beschikbaar :
Privé
Privé
Privé
Privé
Ja
Huisdieren :
Roken :
Parkeerplaats :
Fietsenstalling :
Toegestaan
Toegestaan
Niet beschikbaar
Niet beschikbaar