
Kuipersdijk , 7541 WL Enschede
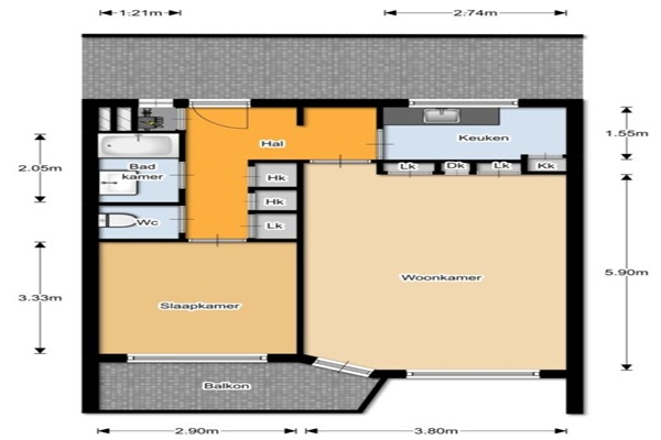
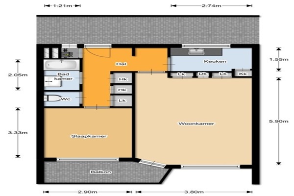
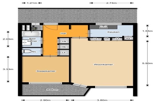
Indeling: Via de trap omhoog kom je het appartement binnen. Op de eerste verdieping bevinden zich twee ruime kamers en een keuken v.v. combi-magnetron, afzuigkap, koelkast en inductiekookplaat. Op de tweede verdieping, te bereiken via de trap, bevindt zich één royale kamer en de badkamer v.v. wastafel, douchecabine en toilet. Dit appartement is beschikbaar voor twee studenten.
Huurprijs p.m. :
Oppervlakte :
Kamers :
Badkamers :
Slaapkamers :
€ 1.075,00
104 m2
3
1
2
Woningtype :
Interieur :
Beschikbaar vanaf :
Beschikbaar tot :
Huisgenoot :
Appartement
n/a
01-12-2025
n/a
0
Badkamer :
Toilet :
Keuken :
Woonkamer :
Internet beschikbaar :
Privé
Privé
Privé
Privé
Ja
Huisdieren :
Roken :
Parkeerplaats :
Fietsenstalling :
Verboden
Toegestaan
Niet beschikbaar
Niet beschikbaar