
Maria Stuartplein , 2595 BW Den Haag
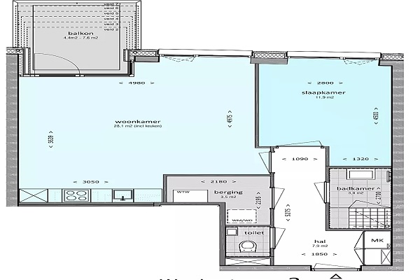
Wonen op grote hoogte met uitzicht over de stad? Dit stijlvol afgewerkte tweekamerappartement van circa 58,2 m² bevindt zich op de 30e verdieping van The Roofs, midden in het bruisende hart van Den Haag. Niet te groot, niet te klein – precies goed voor comfortabel stedelijk wonen. Volledig uitgeruste leefkeuken voor kookliefhebbers Hou je van koken? In deze woning ben je van alle gemakken voorzien. De moderne keuken is compleet uitgerust met hoogwaardige inbouwapparatuur: een inductiekookplaat met afzuigkap, combimagnetron, vaatwasser en koel-vriescombinatie. Zo kook je elke dag met gemak én plezier. Strakke badkamer en separaat toilet De badkamer is netjes afgewerkt en voorzien van een ruime inloopdouche, een wastafel met spiegel en eigentijdse betegeling. Daarnaast is er een separaat toilet – extra comfortabel in het dagelijks gebruik.
Huurprijs p.m. :
Oppervlakte :
Kamers :
Badkamers :
Slaapkamers :
€ 1.640,00
58 m2
2
1
1
Woningtype :
Interieur :
Beschikbaar vanaf :
Beschikbaar tot :
Huisgenoot :
Appartement
n/a
07-10-2025
n/a
0
Badkamer :
Toilet :
Keuken :
Woonkamer :
Internet beschikbaar :
Privé
Privé
Privé
Privé
Ja
Huisdieren :
Roken :
Parkeerplaats :
Fietsenstalling :
Toegestaan
Toegestaan
Niet beschikbaar
Niet beschikbaar