Huurflits
Kruisplein , Rotterdam
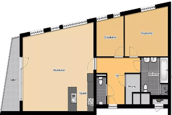
Indeling Via de hal heb je toegang tot de woonkamer, twee ruime slaapkamers, badkamer, toilet en inpandige berging. De ruime woonkamer (40m2) is zeer licht door de vele ramen. Daarbij heb je een mooi uitzicht over de stad en kijk je zo richting Centraal Station. De keuken staat in open verbinding met de woonkamer en is voorzien van inbouwapparatuur als een combimagnetron, koel- vriescombinatie, kookplaat en een spoeleiland met vaatwasser. De eerste slaapkamer is zeer ruim met een oppervlak van 16m2. De tweede slaapkamer van 9m2 is ideaal om als logeerkamer of kantoor te gebruiken. De luxe badkamer is voorzien van een ligbad, inloopdouche, toilet en dubbele wastafel. Via de openslaande deur in de woonkamer heb je toegang tot het balkon (7 m2). Hier heb je vrij uitzicht op de Westersingel/Kruisplein. De hoofdentree voor het complex is een fraai atrium waar een servicebalie, vergaderruimtes en een gemeenschappelijke fitnessruimte aanwezig zijn. Alle huurappartementen hebben een luxe inrichtingsniveau. Comfortabel wonen op hoog niveau in hartje Rotterdam. Een eigen parkeerplaats in de parkeergarage is inbegrepen.
Huurprijs p.m. :
Oppervlakte :
Kamers :
Badkamers :
Slaapkamers :
€ 2.085,00
107 m2
3
1
2
Woningtype :
Interieur :
Beschikbaar vanaf :
Beschikbaar tot :
Huisgenoot :
Appartement
n/a
25-04-2026
n/a
0
Badkamer :
Toilet :
Keuken :
Woonkamer :
Internet beschikbaar :
Privé
Privé
Privé
Privé
Ja
Huisdieren :
Roken :
Parkeerplaats :
Fietsenstalling :
Toegestaan
Toegestaan
Niet beschikbaar
Niet beschikbaar