header-logo2.png Huurflits

Appartement Van Hallstraat in Amsterdam

Van Hallstraat , 1051 HK Amsterdam

€ 967,00 excl. G/W/E

Beschrijving

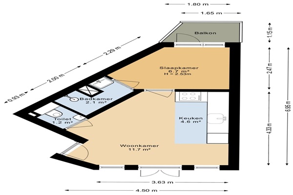
Alleen student! Men moet ingeschreven zijn als student bij een opleiding/studie in Amsterdam. Via een gedeelde toegang en trappenhuis kom je op de tweede verdieping. Je komt binnen in de ruime leefkeuken. De keuken is voorzien van een koelkast, gaskookplaat, combi-oven, afzuigkap en een vaatwasser. De badkamer is met een douche wastafel. Er is een apart toilet met fonteintje. Via de slaapkamer heb je toegang tot het balkon

Verstuur een bericht

Door een bericht te sturen kom je in contact met de aanbieder of makelaar van de woning.

Bericht versturen

Woningdetails

  • Huurprijs p.m. :

  • Oppervlakte :

  • Kamers :

  • Badkamers :

  • Slaapkamers :

  • € 967,00

  • 28 m2

  • 2

  • 1

  • 1

  • Woningtype :

  • Interieur :

  • Beschikbaar vanaf :

  • Beschikbaar tot :

  • Huisgenoot :

  • Appartement

  • n/a

  • 22-04-2026

  • n/a

  • 0

Faciliteiten

  • Badkamer :

  • Toilet :

  • Keuken :

  • Woonkamer :

  • Internet beschikbaar :

  • Privé

  • Privé

  • Privé

  • Privé

  • Ja

  • Huisdieren :

  • Roken :

  • Parkeerplaats :

  • Fietsenstalling :

  • Verboden

  • Toegestaan

  • Niet beschikbaar

  • Niet beschikbaar

Locatie