Huurflits
Kanseliersplein , 5223 LV Den Bosch
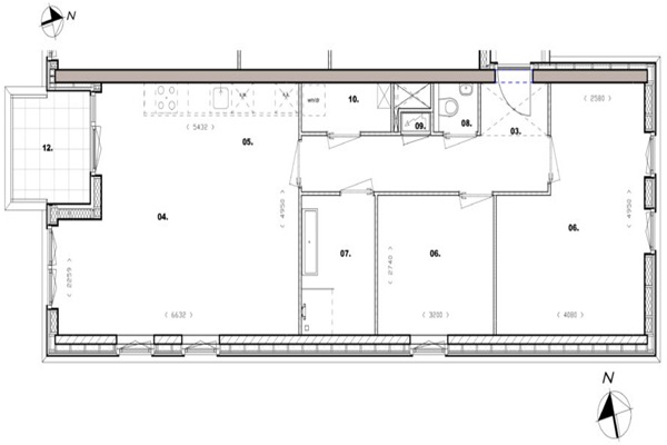
Appartement: Achter de voordeur bevindt zich de ruime entree voorzien van een nis voor de garderobe. Vanuit hier heb je toegang tot de twee slaapkamers, technische ruimte, de badkamer, separate toiletruimte en woonkamer met open keuken. Woonkamer De woonkamer is met circa 33m2 ruim van afmeting en geniet van veel lichtinval vanwege de grote raampartij. Keuken De moderne open Bruynzeel keuken met combi-magnetron, koel-vriescombinatie, inductiekookplaat, afzuigkap en vaatwasser, nodigt uit om lekker te kokkerellen. Badkamer De moderne badkamer is voorzien van een fijne douche met hardglazen douchewand, een dubbele wastafel en een radiator. Toilet Separate toiletruimte met fonteintje.
Huurprijs p.m. :
Oppervlakte :
Kamers :
Badkamers :
Slaapkamers :
€ 1.542,00
73 m2
3
1
2
Woningtype :
Interieur :
Beschikbaar vanaf :
Beschikbaar tot :
Huisgenoot :
Appartement
n/a
01-03-2026
n/a
0
Badkamer :
Toilet :
Keuken :
Woonkamer :
Internet beschikbaar :
Privé
Privé
Privé
Privé
Ja
Huisdieren :
Roken :
Parkeerplaats :
Fietsenstalling :
Toegestaan
Toegestaan
Niet beschikbaar
Niet beschikbaar