header-logo2.png Huurflits

Appartement Carolina van Nassaustraat in Den Haag

Carolina van Nassaustraat , 2595 AM Den Haag

€ 1.940,00 excl. G/W/E

Beschrijving

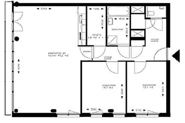
Zeer ruim 3-kamerappartement! Met een woonoppervlakte van 105 m², gelegen op de tweede etage van wooncomplex Prinsenhof in Den Haag. De woning is voorzien van een open keuken met inbouwapparatuur, een royale woonkamer, een badkamer met ligbad en douche en twee ruime slaapkamers. Het appartement ligt midden in de Haagse wijk Bezuidenhout – een heerlijke combinatie van het stadse leven en rust. De woning beschikt over een zeer royale living met grote raampartijen en uitzicht op de binnentuin. De open keuken ligt aan de woonkamer en heeft een moderne uitstraling met een matte grijze look en een fris wit keukenblad. De keuken is voorzien van diverse inbouwapparatuur, waaronder een koelkast met vriesvak, vaatwasser, combimagnetron, keramische kookplaat en afzuigkap. Het appartement beschikt over twee ruime slaapkamers. De badkamer is uitgerust met een ligbad, douche, toilet en wastafel. Daarnaast is er een separaat toilet aanwezig in de hal en een handige inpandige berging met aansluiting voor wasmachine en droger. De woning is tevens voorzien van een videofooninstallatie. Het appartement biedt uitzicht op de binnentuin van het complex. Alle woontorens van Prinsenhof beschikken over een eigen groene binnentuin waar bewoners kunnen ontspannen. Aan de voorzijde van het gebouw bevindt zich een laundry met professionele wasmachines en drogers, vrij toegankelijk voor alle bewoners. Onder Prinsenhof ligt een afgesloten parkeergarage waar het huren van een parkeerplaats mogelijk is.

Verstuur een bericht

Door een bericht te sturen kom je in contact met de aanbieder of makelaar van de woning.

Bericht versturen

Woningdetails

  • Huurprijs p.m. :

  • Oppervlakte :

  • Kamers :

  • Badkamers :

  • Slaapkamers :

  • € 1.940,00

  • 105 m2

  • 3

  • 1

  • 2

  • Woningtype :

  • Interieur :

  • Beschikbaar vanaf :

  • Beschikbaar tot :

  • Huisgenoot :

  • Appartement

  • n/a

  • 12-01-2026

  • n/a

  • 0

Faciliteiten

  • Badkamer :

  • Toilet :

  • Keuken :

  • Woonkamer :

  • Internet beschikbaar :

  • Privé

  • Privé

  • Privé

  • Privé

  • Ja

  • Huisdieren :

  • Roken :

  • Parkeerplaats :

  • Fietsenstalling :

  • Toegestaan

  • Toegestaan

  • Niet beschikbaar

  • Niet beschikbaar

Locatie