header-logo2.png Huurflits

Appartement Maria Stuartplein in Den Haag

Maria Stuartplein , 2595 BW Den Haag

€ 1.490,00 excl. G/W/E

Beschrijving

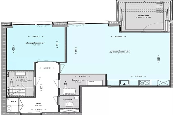
De woonkamer is licht en prettig ingedeeld, met voldoende ruimte voor een comfortabele zit- en eethoek. Door de hoogte van de verdieping heb je bovendien een mooi uitzicht. De leefkeuken is volledig uitgerust en ideaal voor wie graag kookt. Je beschikt over een inductiekookplaat met afzuigkap, een combimagnetron, vaatwasser en een koel-vriescombinatie. Alles is aanwezig om dagelijks uitgebreid te koken. Het appartement heeft een comfortabele slaapkamer met voldoende ruimte voor een bed en kastruimte. De badkamer is netjes afgewerkt en voorzien van een wastafel met spiegel en een ruime inloopdouche. Daarnaast is er een separaat toilet aanwezig. Het ruime balkon ligt op het noordoosten en biedt een fijne plek om buiten te zitten en van het uitzicht te genieten.

Verstuur een bericht

Door een bericht te sturen kom je in contact met de aanbieder of makelaar van de woning.

Bericht versturen

Woningdetails

  • Huurprijs p.m. :

  • Oppervlakte :

  • Kamers :

  • Badkamers :

  • Slaapkamers :

  • € 1.490,00

  • 58 m2

  • 2

  • 1

  • 1

  • Woningtype :

  • Interieur :

  • Beschikbaar vanaf :

  • Beschikbaar tot :

  • Huisgenoot :

  • Appartement

  • n/a

  • 01-05-2026

  • n/a

  • 0

Faciliteiten

  • Badkamer :

  • Toilet :

  • Keuken :

  • Woonkamer :

  • Internet beschikbaar :

  • Privé

  • Privé

  • Privé

  • Privé

  • Ja

  • Huisdieren :

  • Roken :

  • Parkeerplaats :

  • Fietsenstalling :

  • Toegestaan

  • Toegestaan

  • Niet beschikbaar

  • Niet beschikbaar

Locatie