header-logo2.png Huurflits

Huis Beverstraat in Helmond

Beverstraat , 5701 JP Helmond

€ 1.200,00 excl. G/W/E

Beschrijving

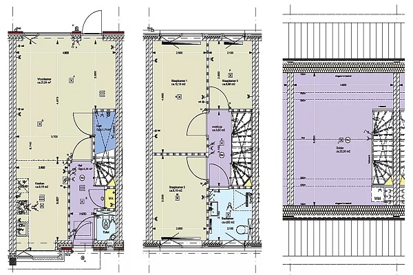
Op de eerste verdieping bevinden zich drie goed ingedeelde slaapkamers. De grootste slaapkamer strekt zich uit over de volledige breedte van de woning en biedt veel mogelijkheden voor inrichting. De overige twee kamers zijn ideaal als kinder-, werk- of logeerkamer. Daarnaast bevindt zich op deze verdieping de badkamer, praktisch gepositioneerd naast de trap en volledig uitgerust voor dagelijks comfort. De tweede verdieping bestaat uit een royale zolderruimte die dankzij de open indeling multifunctioneel te gebruiken is. Met opties voor extra daglicht en opstelruimte voor installaties, biedt deze verdieping volop potentieel voor uitbreiding. Denk bijvoorbeeld aan een extra slaapkamer, hobbyruimte of thuiskantoor. Deze tussenwoning combineert modern wooncomfort met een functionele en toekomstbestendige indeling. De heldere structuur van de plattegronden maakt het huis gemakkelijk in te richten naar persoonlijke wensen. Dankzij de extra zolderverdieping en de praktische opzet van de slaapetage is de woning geschikt voor zowel groeiende gezinnen als stellen die behoefte hebben aan flexibele ruimtes. Het Weverspoort bestaat uit 13 eengezinswoningen met een oppervlakte van gemiddeld 110 m², 3 slaapkamers en een grote zolder. Er zijn 2 hoekwoningen en 11 tussenwoningen. Het is gerealiseerd aan de Beverstraat, op loopafstand van winkelvoorzieningen, basisscholen en het mooie Weverspark. Alle woningen hebben een compleet afgewerkte keuken en badkamer, met alle benodigde inbouwapparatuur, een inloopdouche met glazen wand. De begane grond is voorzien van vloerverwarming! In de tuin is een externe berging en parkeren kan op de openbare parkeerplaatsen naast de Beverstraat. Het Weverspark heeft een toegankelijk, eigen gezicht. Het samenspel van alle onderdelen maakt het park bijzonder. De hoogteverschillen, de speelvoorzieningen, de waterpartijen en de als zitplekken vermomde keermuren. Alles loopt heel natuurlijk in elkaar over.

Verstuur een bericht

Door een bericht te sturen kom je in contact met de aanbieder of makelaar van de woning.

Bericht versturen

Woningdetails

  • Huurprijs p.m. :

  • Oppervlakte :

  • Kamers :

  • Badkamers :

  • Slaapkamers :

  • € 1.200,00

  • 107 m2

  • 4

  • 1

  • 3

  • Woningtype :

  • Interieur :

  • Beschikbaar vanaf :

  • Beschikbaar tot :

  • Huisgenoot :

  • Huurwoning

  • n/a

  • 01-01-2026

  • n/a

  • 0

Faciliteiten

  • Badkamer :

  • Toilet :

  • Keuken :

  • Woonkamer :

  • Internet beschikbaar :

  • Privé

  • Privé

  • Privé

  • Privé

  • Ja

  • Huisdieren :

  • Roken :

  • Parkeerplaats :

  • Fietsenstalling :

  • Toegestaan

  • Toegestaan

  • Niet beschikbaar

  • Niet beschikbaar

Locatie