header-logo2.png Huurflits

Kamer Markt in Helmond

Markt , 5701 RJ Helmond

€ 363,00 excl. G/W/E

Beschrijving

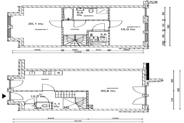
ALLEEN VOOR STUDENTEN Deze woning bestaat uit totaal 10 kamers, welke allen voorzien zijn van een eigen wastafel. De ruime woonkeuken met toegang tot een fijn dakterras wordt met elkaar gedeeld. De woning beschikt daarnaast over 2 badkamers en 2 toiletten voor gezamenlijk gebruik.

Verstuur een bericht

Door een bericht te sturen kom je in contact met de aanbieder of makelaar van de woning.

Bericht versturen

Woningdetails

  • Huurprijs p.m. :

  • Oppervlakte :

  • Kamers :

  • Badkamers :

  • Slaapkamers :

  • € 363,00

  • 17 m2

  • 1

  • 2

  • 1

  • Woningtype :

  • Interieur :

  • Beschikbaar vanaf :

  • Beschikbaar tot :

  • Huisgenoot :

  • Kamer

  • n/a

  • 01-01-2026

  • n/a

  • 0

Faciliteiten

  • Badkamer :

  • Toilet :

  • Keuken :

  • Woonkamer :

  • Internet beschikbaar :

  • Gedeeld

  • Gedeeld

  • Gedeeld

  • Gedeeld

  • Ja

  • Huisdieren :

  • Roken :

  • Parkeerplaats :

  • Fietsenstalling :

  • Toegestaan

  • Toegestaan

  • Niet beschikbaar

  • Niet beschikbaar

Locatie