
Adriaan Dortsmanstraat , 3067 NC Rotterdam
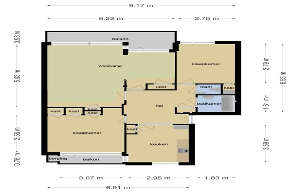
Voor slechts 2 delende studenten vanwege een tijdelijke huur Afgesloten entree met brievenbussen en bellentableau; toegang bergingen en lift. Entree, centrale hal met de garderoberuimte, de meterkast en de deuren naar alle ruimtes. De ruime keuken is ca. 11.5m2 en bevindt zich aan de voorzijde. De keuken is voorzien van een vaste kast en een L-vormig keukenblok met een 5-pits gasfornuis met RVS afzuigschouw, koel- vriescombinatie, vaatwasser en een combi-oven. Vanaf de keuken is het balkon aan de voorzijde bereikbaar. De L-vormige woonkamer is ca. 30m2 met veel lichtinval en heeft een prachtig groen uitzicht aan de achterzijde door het bomenpark van de parktuin en het Kralingebos. Vanaf hier is het grote, op het westen gelegen balkon te bereiken. Vier grote ramen zorgen voor veel daglicht. Het appartement beschikt over 2 slaapkamers, waarbij de grote slaapkamer (16,5m2) 3 vaste kasten heeft en ook weer toegang biedt tot het balkon aan de voorzijde. De tweede slaapkamer is ca. 11m2. Beide slaapkamers zijn voorzien comfortabele 2 persoons bedden. De volledig betegelde badkamer is voorzien van een douche, een wastafel en wasmachine. Het separaat toilet is voorzien van fonteintje en uitgevoerd met dezelfde betegeling als de badkamer.
Huurprijs p.m. :
Oppervlakte :
Kamers :
Badkamers :
Slaapkamers :
€ 1.500,00
88 m2
3
1
2
Woningtype :
Interieur :
Beschikbaar vanaf :
Beschikbaar tot :
Huisgenoot :
Appartement
n/a
01-12-2025
n/a
0
Badkamer :
Toilet :
Keuken :
Woonkamer :
Internet beschikbaar :
Privé
Privé
Privé
Privé
Ja
Huisdieren :
Roken :
Parkeerplaats :
Fietsenstalling :
Toegestaan
Toegestaan
Niet beschikbaar
Niet beschikbaar