
Stationsstraat , 6221 BR Maastricht
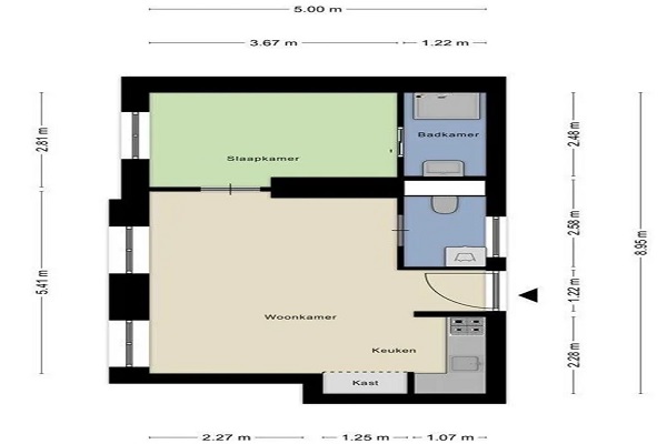
STUDENTEN NIET TOEGESTAAN INDELING Statige entree met de nodige grandeur geeft toegang tot het ruime trappenhuis. Eigen voordeur geeft toegang tot het warm en sfeervol appartement, bestaande uit een woonkamer met open keuken in hoekopstelling, ruime toiletruimte met was- droogcombinatie, aparte slaapkamer met badkamer ensuite met schuifdeur. Appartement is onder andere voorzien van bank met chaise longue, eettafel met 4 stoelen, wandrek, garderobekasten, 2 persoons boxspring bed met textielpakket. Géén studenten toegestaan.
Huurprijs p.m. :
Oppervlakte :
Kamers :
Badkamers :
Slaapkamers :
€ 1.185,00
48 m2
2
1
1
Woningtype :
Interieur :
Beschikbaar vanaf :
Beschikbaar tot :
Huisgenoot :
Appartement
n/a
01-12-2025
n/a
0
Badkamer :
Toilet :
Keuken :
Woonkamer :
Internet beschikbaar :
Privé
Privé
Privé
Privé
Ja
Huisdieren :
Roken :
Parkeerplaats :
Fietsenstalling :
Toegestaan
Toegestaan
Niet beschikbaar
Niet beschikbaar