
Jan Petersstraat , 6225 AX Maastricht
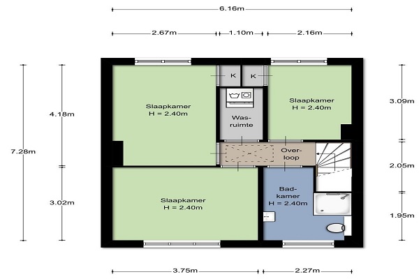
Indeling: Entreehal met separaat toilet en kleine berging (kelder). Woonkamer met open keuken ca. 34m2. De woonkamer is voorzien van een mooie houten vloer. De open keuken beschikt over een 4 pits gasfornuis, afzuigkap, vaatwasser, combi oven/magnetron, koelkast met diepvries en een aanrecht met spoelbak. Vanuit de leuken heeft u toegang tot de volledig betegelde tuin met berging. Deze berging is ca. 10m2 groot. Op de eerste etage treft u 3 slaapkamers aan, de badkamer en de wasruimte. De badkamer beschikt over een douche, wastafel met speigel en een extra toilet. Slaapkamer 1 is ca. 11,2m2, slaapkamer 2 ca. 6,7m2 en slaapkamer 3 ca. 11,3m2. De slaapkamers zijn voorzien van een nette laminaatvloer. De wasruimte is ca. 2,5m2. Middels een vlizotrap trap heeft u toegang tot een ruime bergzolder van ca. 23,2m2.
Huurprijs p.m. :
Oppervlakte :
Kamers :
Badkamers :
Slaapkamers :
€ 1.795,00
120 m2
4
1
3
Woningtype :
Interieur :
Beschikbaar vanaf :
Beschikbaar tot :
Huisgenoot :
Huurwoning
n/a
01-12-2025
n/a
0
Badkamer :
Toilet :
Keuken :
Woonkamer :
Internet beschikbaar :
Privé
Privé
Privé
Privé
Ja
Huisdieren :
Roken :
Parkeerplaats :
Fietsenstalling :
Toegestaan
Toegestaan
Niet beschikbaar
Niet beschikbaar