
Egelstraat , Eindhoven
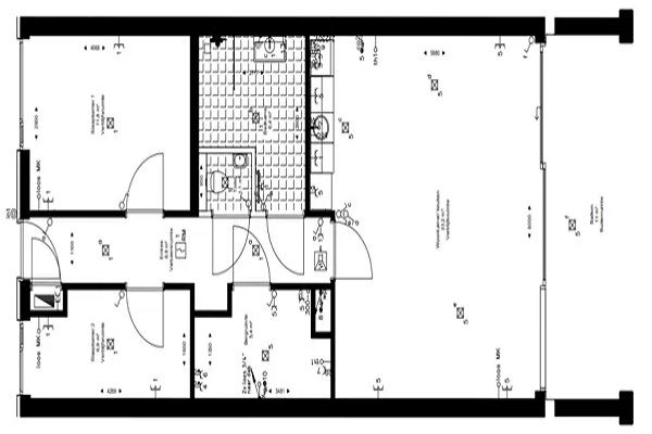
INDELING APPARTEMENT -Entree met bellentableau en brievenbussen; -Trapopgang en lift naar verdiepingen. -Entree; -Hal met voldoende ruimte voor een garderobe; -Slaapkamer 1; -Slaapkamer 2; -(Deels) betegelde toiletruimte voorzien van zwevend toilet en fonteintje; -(Deels) betegelde badkamer voorzien van inloopdouche met glazen douchewand en wastafel met spiegel; -Technische ruimte voorzien van verwarmingsinstallatie, unit mechanische ventilatie en aansluitingen voor wasapparatuur; -Woonkamer met open keuken voorzien van diverse inbouwapparatuur waaronder koelkast, vriezer, vaatwasser, inductiekookplaat en afzuigkap; -Terras.
Huurprijs p.m. :
Oppervlakte :
Kamers :
Badkamers :
Slaapkamers :
€ 1.375,00
78 m2
3
1
2
Woningtype :
Interieur :
Beschikbaar vanaf :
Beschikbaar tot :
Huisgenoot :
Appartement
n/a
01-11-2025
n/a
0
Badkamer :
Toilet :
Keuken :
Woonkamer :
Internet beschikbaar :
Privé
Privé
Privé
Privé
Ja
Huisdieren :
Roken :
Parkeerplaats :
Fietsenstalling :
Toegestaan
Toegestaan
Niet beschikbaar
Niet beschikbaar