
Hogewoerd , 2311 HZ Leiden
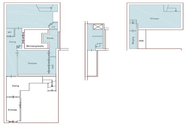
Indeling: gezamenlijke entree, entree appartement, hal met separaat toilet. Slaapkamer 1 (ca. 12 m²) met vaste kasten en toegang tot badkamer 1 voorzien van een douche, wastafel en wasmachineaansluiting. Ruime woonkamer met open keuken voorzien van een gasfornuis, afzuigkap, koelkast en vriezer. Trap naar slaapkamer 2 (ca. 23 m²) met voldoende bergruimte. Badkamer 2 op 1e etage voorzien van een douche, wastafel en een vaste kast. Het appartement heeft daarnaast ook een binnenplaats (ca. 8m²).
Huurprijs p.m. :
Oppervlakte :
Kamers :
Badkamers :
Slaapkamers :
€ 1.450,00
76 m2
3
1
2
Woningtype :
Interieur :
Beschikbaar vanaf :
Beschikbaar tot :
Huisgenoot :
Appartement
n/a
01-11-2025
n/a
0
Badkamer :
Toilet :
Keuken :
Woonkamer :
Internet beschikbaar :
Privé
Privé
Privé
Privé
Ja
Huisdieren :
Roken :
Parkeerplaats :
Fietsenstalling :
Toegestaan
Toegestaan
Niet beschikbaar
Niet beschikbaar