
Apollolaan , 6411 BL Heerlen
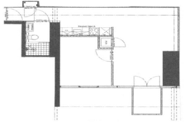
Dit appartement met één slaapkamers ligt op de 2e verdieping. Het appartement is, er is een mooie pvc vloerbekleding in een lichte kleur. De keuken is compleet met inbouwapparatuur zoals een vaatwasser, combi magnetron , koelkast, afzuigkap en spoelbak. Er is voldoende opbergruimte voor alle je eigen kookspullen. De badkamer is volledig betegeld en voorzien van een wastafelmeubel, hangtoilet, inloopdouche en handdoekradiator. Er is een aparte berging met een aansluiting voor de wasmachine. Vanuit de woonkamer heb je toegang tot het balkon.
Huurprijs p.m. :
Oppervlakte :
Kamers :
Badkamers :
Slaapkamers :
€ 960,00
46 m2
2
1
1
Woningtype :
Interieur :
Beschikbaar vanaf :
Beschikbaar tot :
Huisgenoot :
Appartement
n/a
01-11-2025
n/a
0
Badkamer :
Toilet :
Keuken :
Woonkamer :
Internet beschikbaar :
Privé
Privé
Privé
Privé
Ja
Huisdieren :
Roken :
Parkeerplaats :
Fietsenstalling :
Toegestaan
Toegestaan
Niet beschikbaar
Niet beschikbaar