
Topaasstraat , 6713 TB Ede
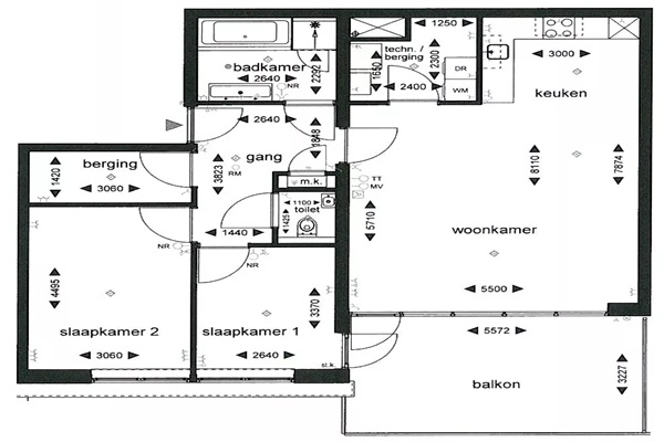
De appartementen zijn ruim opgezet, beschikken allemaal over een royale buitenruimte en hebben bovendien een privéparkeerplaats. Dit specifieke appartement heeft een woonoppervlakte van 105 m² en is voorzien van een luxe keuken en badkamer. Dankzij de grote raampartijen geniet je in de woonkamer van een prachtige lichtinval, waardoor het geheel een moderne en frisse uitstraling heeft. Het wonen in Marie Louise betekent comfort en luxe, gecombineerd met een ideale ligging. Je hebt een fijn balkon met uitzicht op groen of een pleintje, een eigen parkeerplaats in de afgesloten parkeergarage en de beschikking over hoogwaardig afgewerkt sanitair en keukenapparatuur. Alle voorzieningen liggen op loopafstand, waardoor je alles bij de hand hebt.
Huurprijs p.m. :
Oppervlakte :
Kamers :
Badkamers :
Slaapkamers :
€ 1.208,00
105 m2
3
1
2
Woningtype :
Interieur :
Beschikbaar vanaf :
Beschikbaar tot :
Huisgenoot :
Appartement
n/a
01-12-2025
n/a
0
Badkamer :
Toilet :
Keuken :
Woonkamer :
Internet beschikbaar :
Privé
Privé
Privé
Privé
Ja
Huisdieren :
Roken :
Parkeerplaats :
Fietsenstalling :
Toegestaan
Toegestaan
Niet beschikbaar
Niet beschikbaar