
Pieter Belsstraat , 5961 DX Horst
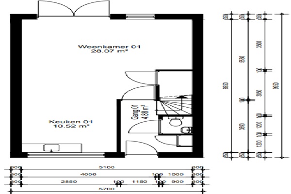
Deze fraaie tussenwoning heeft 127 m2 woonoppervlakte, 3 slaapkamers en een ruime zolder. Bovendien bevat de woning een tuin met eigen achterom waar eventueel kinderen heerlijk kunnen spelen. Wonen aan de Pieter Belsstraat in Horst, is ruim en modern wonen op op een centrale locatie met alle denkbare voorzieningen op loopafstand.
Huurprijs p.m. :
Oppervlakte :
Kamers :
Badkamers :
Slaapkamers :
€ 1.185,00
127 m2
4
1
3
Woningtype :
Interieur :
Beschikbaar vanaf :
Beschikbaar tot :
Huisgenoot :
Huurwoning
n/a
31-10-2025
n/a
0
Badkamer :
Toilet :
Keuken :
Woonkamer :
Internet beschikbaar :
Privé
Privé
Privé
Privé
Ja
Huisdieren :
Roken :
Parkeerplaats :
Fietsenstalling :
Toegestaan
Toegestaan
Niet beschikbaar
Niet beschikbaar