
Thorbeckestraat , 8442 CZ Heerenveen
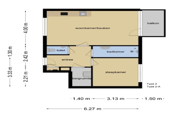
Indeling: Bij binnenkomst heeft u toegang tot het toilet, meterkast, en een bergruimte. De badkamer is voorzien van een inloopdouche met glazen douchewand en een stijlvol badmeubel. De lichte woonkamer beschikt over een moderne, rechte open keuken en een deur naar het balkon. Verwarming middels een warmtepomp welke zowel kan verwarmen en koelen!
Huurprijs p.m. :
Oppervlakte :
Kamers :
Badkamers :
Slaapkamers :
€ 1.138,00
53 m2
2
1
1
Woningtype :
Interieur :
Beschikbaar vanaf :
Beschikbaar tot :
Huisgenoot :
Appartement
n/a
19-09-2025
n/a
0
Badkamer :
Toilet :
Keuken :
Woonkamer :
Internet beschikbaar :
Privé
Privé
Privé
Privé
Ja
Huisdieren :
Roken :
Parkeerplaats :
Fietsenstalling :
Toegestaan
Toegestaan
Niet beschikbaar
Niet beschikbaar