header-logo2.png Huurflits

Appartement Arthur van Schendelstraat in Utrecht

Arthur van Schendelstraat , 3511 MP Utrecht

€ 2.400,00 excl. G/W/E

Beschrijving

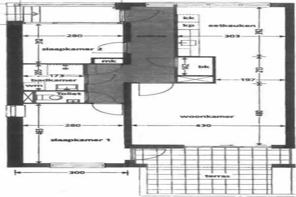
Indeling Begane grond: Entree, hal, slaapkamer met inbouwkast, berging met wasmachineaansluiting, nette badkamer v.v. ligbad, wastafel, radiator en spiegel met spiegelverwarming. Separaat toilet, tweede ruime slaapkamer (achterzijde) met toegang naar de ruime tuin die gelegen is op het zuid westen met uitzicht op de gemeenschappelijke binnentuin. Woonkamer met schuifdeur naar het terras en toegang tot moderne en ruime eetkeuken. De keuken is voorzien van inbouwapparatuur zoals een combi magnetron, vaatwasser, inductie kookplaat, afzuiger, koelkast en vriezer. De gehele woning is voorzien van een fraaie laminaatvloer.

Verstuur een bericht

Door een bericht te sturen kom je in contact met de aanbieder of makelaar van de woning.

Bericht versturen

Woningdetails

  • Huurprijs p.m. :

  • Oppervlakte :

  • Kamers :

  • Badkamers :

  • Slaapkamers :

  • € 2.400,00

  • 78 m2

  • 3

  • 1

  • 2

  • Woningtype :

  • Interieur :

  • Beschikbaar vanaf :

  • Beschikbaar tot :

  • Huisgenoot :

  • Appartement

  • n/a

  • 28-04-2026

  • n/a

  • 0

Faciliteiten

  • Badkamer :

  • Toilet :

  • Keuken :

  • Woonkamer :

  • Internet beschikbaar :

  • Privé

  • Privé

  • Privé

  • Privé

  • Ja

  • Huisdieren :

  • Roken :

  • Parkeerplaats :

  • Fietsenstalling :

  • Toegestaan

  • Toegestaan

  • Niet beschikbaar

  • Niet beschikbaar

Locatie