header-logo2.png Huurflits

Appartement Van Eesterenplein in Dordrecht

Van Eesterenplein , 3315 KV Dordrecht

€ 1.088,00 excl. G/W/E

Beschrijving

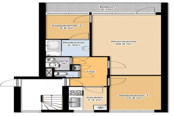
Bij binnenkomst stap je in een ruime hal die toegang biedt tot een apart toilet, de meterkast en een handige berging met aansluitingen voor wasmachine en droger, waardoor functionaliteit en comfort hier hand in hand gaan. De royale en smaakvol afgewerkte woonkamer is voorzien van alle gemakken, inclusief televisieaansluitingen, en biedt via de openslaande deuren toegang tot het zonnige balkon. Het balkon ligt op het zuiden en vormt een perfecte plek om te genieten van de buitenlucht en de zon gedurende de dag. De moderne keuken is strategisch gesitueerd nabij de hal en volledig uitgerust met hoogwaardige inbouwapparatuur, waaronder een afzuigkap, kookgelegenheid, vaatwasser, combioven, koelkast en vriezer, zodat koken hier een waar genoegen is. De luxe badkamer biedt zowel een ligbad als een douche, samen met een wastafel en praktische mengkranen, waardoor ontspanning en comfort volledig samenkomen.

Verstuur een bericht

Door een bericht te sturen kom je in contact met de aanbieder of makelaar van de woning.

Bericht versturen

Woningdetails

  • Huurprijs p.m. :

  • Oppervlakte :

  • Kamers :

  • Badkamers :

  • Slaapkamers :

  • € 1.088,00

  • 86 m2

  • 3

  • 1

  • 2

  • Woningtype :

  • Interieur :

  • Beschikbaar vanaf :

  • Beschikbaar tot :

  • Huisgenoot :

  • Appartement

  • n/a

  • 01-06-2026

  • n/a

  • 0

Faciliteiten

  • Badkamer :

  • Toilet :

  • Keuken :

  • Woonkamer :

  • Internet beschikbaar :

  • Privé

  • Privé

  • Privé

  • Privé

  • Ja

  • Huisdieren :

  • Roken :

  • Parkeerplaats :

  • Fietsenstalling :

  • Toegestaan

  • Toegestaan

  • Niet beschikbaar

  • Niet beschikbaar

Locatie