header-logo2.png Huurflits

Huis Anna Maria van Schurmanlaan in Almere

Anna Maria van Schurmanlaan , 1349 BG Almere

€ 1.528,00 excl. G/W/E

Beschrijving

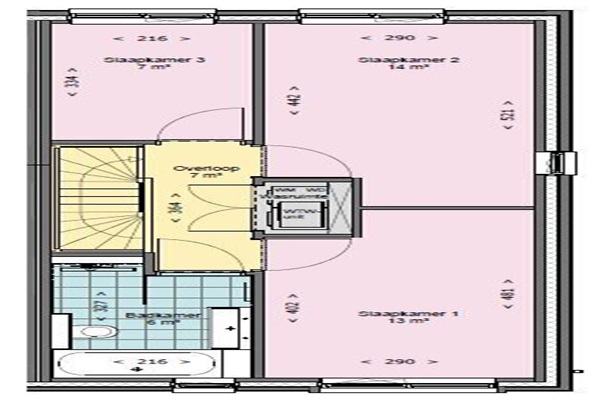
Indeling: U komt binnen via de ruime entree met meterkast, garderobe, toilet met fontein, trapopgang naar de eerste verdieping en de woonkamer met open keuken. De moderne hoekkeuken bevindt zich aan de voorzijde van het huis en is van alle gemakken voorzien. Via de openslaande deuren in de woonkamer kunt u naar de achtertuin. Deze is gelegen op het zonnige zuidwesten zodat u het hele jaar door volop van de zon kunt genieten. Achterin de tuin bevindt zich een houten (fietsen)berging. Eerste verdieping: Drie ruime slaapkamer van respectievelijk 14 m², 13 m² en 7 m². De badkamer is voorzien van bad, dubbele wastafel, inloopdouche en toilet. Naast deze woning is een oprit waar u maar liefst twee auto's kwijt kunt.

Verstuur een bericht

Door een bericht te sturen kom je in contact met de aanbieder of makelaar van de woning.

Bericht versturen

Woningdetails

  • Huurprijs p.m. :

  • Oppervlakte :

  • Kamers :

  • Badkamers :

  • Slaapkamers :

  • € 1.528,00

  • 105 m2

  • 4

  • 1

  • 3

  • Woningtype :

  • Interieur :

  • Beschikbaar vanaf :

  • Beschikbaar tot :

  • Huisgenoot :

  • Huurwoning

  • n/a

  • 22-04-2026

  • n/a

  • 0

Faciliteiten

  • Badkamer :

  • Toilet :

  • Keuken :

  • Woonkamer :

  • Internet beschikbaar :

  • Privé

  • Privé

  • Privé

  • Privé

  • Ja

  • Huisdieren :

  • Roken :

  • Parkeerplaats :

  • Fietsenstalling :

  • Toegestaan

  • Toegestaan

  • Niet beschikbaar

  • Niet beschikbaar

Locatie