Huurflits
Meerring , 5658 LH Eindhoven
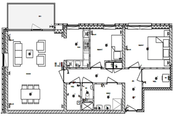
INDELING Algemeen: - Bellentableau met brievenbussen; - Trapopgang en lift naar verdiepingen; Appartement: - Entree; - Hal met voldoende ruimte voor garderobe; - Deels betegelde toiletruimte met toilet en fonteintje; - Woonkamer met toegang tot het balkon; - Nette keuken voorzien van diverse inbouwapparatuur waaronder koel-/vriescombinatie, combimagnetron, inductiekookplaat, afzuigkap en vaatwasser; - Deels betegelde badkamer voorzien van inloopdouche, toilet en wastafel; - Slaapkamer 1; - Slaapkamer 2; - Inpandige berging met aansluiting wasapparatuur; - Balkon Tevens beschikt deze woning ook over een berging op de begane grond en een parkeerplaats.
Huurprijs p.m. :
Oppervlakte :
Kamers :
Badkamers :
Slaapkamers :
€ 1.717,00
90 m2
3
1
2
Woningtype :
Interieur :
Beschikbaar vanaf :
Beschikbaar tot :
Huisgenoot :
Appartement
n/a
01-05-2026
n/a
0
Badkamer :
Toilet :
Keuken :
Woonkamer :
Internet beschikbaar :
Privé
Privé
Privé
Privé
Ja
Huisdieren :
Roken :
Parkeerplaats :
Fietsenstalling :
Verboden
Toegestaan
Niet beschikbaar
Niet beschikbaar