Huurflits
Ruyschstraat , 1091 BX Amsterdam
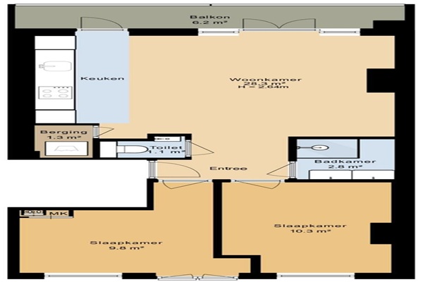
Indeling: Het appartement bevindt zich op de derde verdieping welke via het trappenhuis te bereiken is. Entree in de hal welke toegang geeft tot alle ruimtes. De woonkamer van ongeveer 28 m2 heeft een open keuken voorzien van inbouwapparatuur. De keuken is voorzien van een inductie kookplaat, koel-vries combi, vaatwasser, combi-oven en een afzuigkap. Vis de woonkamer heb je twee openslaande deuren naar het balkon welke gelegen is op het zuidoosten. Er zijn twee slaapkamers. De badkamer is met een dubbele wastafel en een douche. Er is een apart toilet met fonteintje.
Huurprijs p.m. :
Oppervlakte :
Kamers :
Badkamers :
Slaapkamers :
€ 2.350,00
56 m2
3
1
2
Woningtype :
Interieur :
Beschikbaar vanaf :
Beschikbaar tot :
Huisgenoot :
Appartement
n/a
10-04-2026
n/a
0
Badkamer :
Toilet :
Keuken :
Woonkamer :
Internet beschikbaar :
Privé
Privé
Privé
Privé
Ja
Huisdieren :
Roken :
Parkeerplaats :
Fietsenstalling :
Verboden
Toegestaan
Niet beschikbaar
Niet beschikbaar