header-logo2.png Huurflits

Appartement Elzenhagensingel in Amsterdam

Elzenhagensingel , 1022 KE Amsterdam

€ 2.044,00 excl. G/W/E

Beschrijving

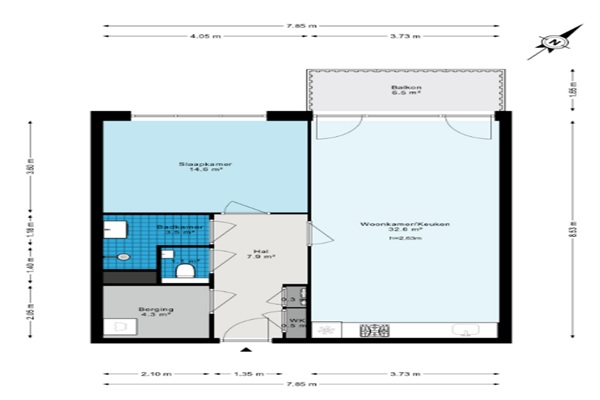
Het appartement heeft een oppervlakte van circa 67m2. Vanuit de hal zijn alle vertrekken van de woning te bereiken. De woonkamer met open keuken heft een oppervlakte van circa 32.6 m2 en is voorzien van alle benodigde inbouwapparatuur zoals een kookplaat, combi oven/magnetron, afzuigkap, koelkast, vriezer en een vaatwasser. Vanuit de woonkamer is toegang naar het balkon van circa 6.5 m2. De slaapkamer heeft een oppervlakte van circa 14.6m2. De badkamer is uitgerust met een inloopdouche, wastafel en handdoekradiator. Daarnaast beschikt het appartement over een inpandige berging met wasmachine aansluiting en een separaat toilet. Het appartement wordt opgeleverd met PVC vloer en witte wandafwerking. Niet mogelijk voor studenten om te huren

Verstuur een bericht

Door een bericht te sturen kom je in contact met de aanbieder of makelaar van de woning.

Bericht versturen

Woningdetails

  • Huurprijs p.m. :

  • Oppervlakte :

  • Kamers :

  • Badkamers :

  • Slaapkamers :

  • € 2.044,00

  • 67 m2

  • 2

  • 1

  • 1

  • Woningtype :

  • Interieur :

  • Beschikbaar vanaf :

  • Beschikbaar tot :

  • Huisgenoot :

  • Appartement

  • n/a

  • 09-04-2026

  • n/a

  • 0

Faciliteiten

  • Badkamer :

  • Toilet :

  • Keuken :

  • Woonkamer :

  • Internet beschikbaar :

  • Privé

  • Privé

  • Privé

  • Privé

  • Ja

  • Huisdieren :

  • Roken :

  • Parkeerplaats :

  • Fietsenstalling :

  • Toegestaan

  • Toegestaan

  • Niet beschikbaar

  • Niet beschikbaar

Locatie