header-logo2.png Huurflits

Appartement Stadhoudersplantsoen in Den Haag

Stadhoudersplantsoen , Den Haag

€ 1.570,00 excl. G/W/E

Beschrijving

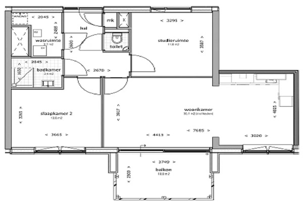
Inleiding Dit moderne appartementencomplex biedt ruime woningen met een luxe afwerking en een hoogwaardige uitstraling. Het appartement aan Stadhoudersplantsoen is een stijlvol driekamerappartement met een royaal terras en een doordachte indeling. De ruime woonkamer is licht en comfortabel, met directe toegang tot het terras. De grote raampartijen zorgen voor een prettige hoeveelheid daglicht en creëren een open en uitnodigende sfeer. Aan de woonkamer grenst de luxe Olympia Bruynzeel keuken in witte uitvoering met een quartsiet Easy Miner werkblad. De open keuken is volledig uitgerust met een combimagnetron, inductiekookplaat, koelkast met vriesvak en vaatwasser. Een moderne en praktische ruimte voor dagelijks kookgemak. Het appartement beschikt over twee slaapkamers. Beide kamers zijn prettig van formaat en geschikt als masterbedroom, logeerkamer of werkruimte. De luxe badkamer is voorzien van een ruime inloopdouche en een wastafel. Daarnaast bevindt zich in de hal een separaat toilet, wat het wooncomfort verhoogt. In de hal vind je een ruime wasruimte met aansluitingen voor wasapparatuur. Daarnaast beschikt het appartement over vloerverwarming en een praktische indeling. Het appartement beschikt over een royaal terras, bereikbaar vanuit de woonkamer. Een heerlijke plek om buiten te zitten en te genieten van de omgeving

Verstuur een bericht

Door een bericht te sturen kom je in contact met de aanbieder of makelaar van de woning.

Bericht versturen

Woningdetails

  • Huurprijs p.m. :

  • Oppervlakte :

  • Kamers :

  • Badkamers :

  • Slaapkamers :

  • € 1.570,00

  • 72 m2

  • 3

  • 1

  • 2

  • Woningtype :

  • Interieur :

  • Beschikbaar vanaf :

  • Beschikbaar tot :

  • Huisgenoot :

  • Appartement

  • n/a

  • 01-05-2026

  • n/a

  • 0

Faciliteiten

  • Badkamer :

  • Toilet :

  • Keuken :

  • Woonkamer :

  • Internet beschikbaar :

  • Privé

  • Privé

  • Privé

  • Privé

  • Ja

  • Huisdieren :

  • Roken :

  • Parkeerplaats :

  • Fietsenstalling :

  • Toegestaan

  • Toegestaan

  • Niet beschikbaar

  • Niet beschikbaar

Locatie