Huurflits
Postjesweg , 1065 XR Amsterdam
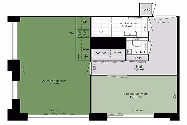
Inleiding Op de elfde verdieping van een modern appartementencomplex ligt dit slim ingedeelde en verrassend lichte appartement van 47 m². Een ideale woonplek voor starters of stellen die comfortabel willen wonen in een levendige buurt met uitstekende voorzieningen binnen handbereik. Woonkamer Bij binnenkomst valt direct de prettige lichtinval op. De woonkamer vormt het hart van de woning en biedt dankzij de ligging op hoogte een vrij en open uitzicht. De ruimte voelt uitnodigend en licht, ideaal voor zowel ontspanning als. Keuken De open keuken sluit naadloos aan op de woonkamer en is uitgerust met moderne inbouwapparatuur, waaronder een koelkast, combimagnetron, vaatwasser en kookplaat. Een fijne plek om dagelijks te koken of uitgebreid te tafelen met vrienden. Slaapkamer De aangrenzende slaapkamer heeft een prettig formaat en biedt voldoende ruimte voor een tweepersoonsbed en een kledingkast. Een rustige plek om je terug te trekken na een lange dag. Badkamer & Toilet De badkamer is compact maar efficiënt ingericht en voorzien van alle basiscomfort. Daarnaast beschikt het appartement over een separaat toilet, wat het wooncomfort verhoogt. Overige ruimtes In de hal bevindt zich een praktische opstelling voor de wasmachine en de warmte-terugwininstallatie. Hierdoor blijft de woning netjes en georganiseerd.
Huurprijs p.m. :
Oppervlakte :
Kamers :
Badkamers :
Slaapkamers :
€ 1.184,00
47 m2
2
1
1
Woningtype :
Interieur :
Beschikbaar vanaf :
Beschikbaar tot :
Huisgenoot :
Appartement
n/a
01-05-2026
n/a
0
Badkamer :
Toilet :
Keuken :
Woonkamer :
Internet beschikbaar :
Privé
Privé
Privé
Privé
Ja
Huisdieren :
Roken :
Parkeerplaats :
Fietsenstalling :
Toegestaan
Toegestaan
Niet beschikbaar
Niet beschikbaar