header-logo2.png Huurflits

Appartement Papestraat in Den Haag

Papestraat , 2513 AW Den Haag

€ 2.195,00 excl. G/W/E

Beschrijving

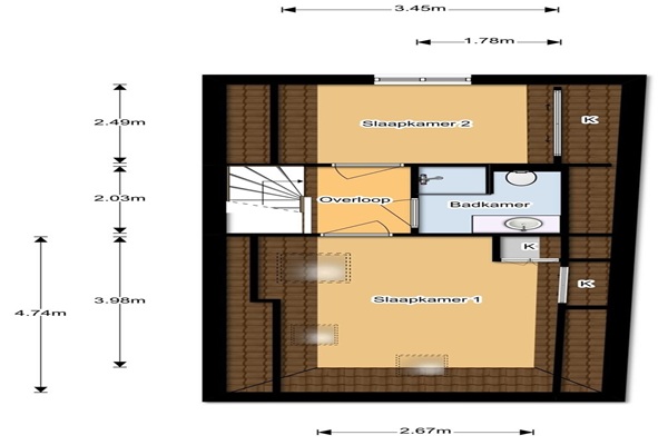
Indeling Entree vanaf de straat met trap naar de tweede verdieping. Eigen entree tot het appartement. Luxe open keuken voorzien van inbouwapparatuur, waaronder een vaatwasser, oven/magnetron, inductiekookplaat en koel-/vriescombinatie. Eettafel met stoelen. Toegang tot de woonkamer met een bank, tv en geïntegreerd luidsprekersysteem. Een trap naar de derde verdieping leidt naar twee ruime slaapkamers en een badkamer voorzien van een inloopdouche, wastafelmeubel en handdoekradiator.

Verstuur een bericht

Door een bericht te sturen kom je in contact met de aanbieder of makelaar van de woning.

Bericht versturen

Woningdetails

  • Huurprijs p.m. :

  • Oppervlakte :

  • Kamers :

  • Badkamers :

  • Slaapkamers :

  • € 2.195,00

  • 72 m2

  • 4

  • 1

  • 2

  • Woningtype :

  • Interieur :

  • Beschikbaar vanaf :

  • Beschikbaar tot :

  • Huisgenoot :

  • Appartement

  • n/a

  • 27-03-2026

  • n/a

  • 0

Faciliteiten

  • Badkamer :

  • Toilet :

  • Keuken :

  • Woonkamer :

  • Internet beschikbaar :

  • Privé

  • Privé

  • Privé

  • Privé

  • Ja

  • Huisdieren :

  • Roken :

  • Parkeerplaats :

  • Fietsenstalling :

  • Toegestaan

  • Toegestaan

  • Niet beschikbaar

  • Niet beschikbaar

Locatie