header-logo2.png Huurflits

Huis Admiraalsdam in Oosterhout

Admiraalsdam , 4908 AZ Oosterhout

€ 1.092,00 excl. G/W/E

Beschrijving

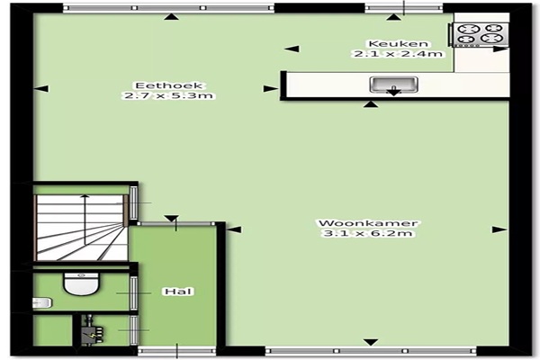
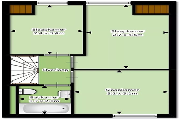
Begane grond Bij binnenkomst tref je de hal met toilet en trapopgang. Vanuit hier loop je door naar de ruime en lichte woonkamer (ca. 31 m²), waar grote raampartijen zorgen voor een prettige lichtinval. Aan de voorzijde bevindt zich de open keuken, praktisch ingericht en in directe verbinding met de eethoek – ideaal voor gezellige diners en contact met familie of gasten. Eerste verdieping Op de eerste verdieping bevinden zich drie comfortabele slaapkamers van verschillend formaat, perfect als slaap-, werk- of kinderkamer. De badkamer is compleet uitgerust met een ligbad, wastafel en toilet. De vaste trap leidt naar de ruime zolderverdieping. Deze open ruimte biedt volop mogelijkheden: denk aan een extra slaapkamer, werkruimte of hobbykamer. Daarnaast beschikt de woning over een externe berging, ideaal voor fietsen en extra opslag.

Verstuur een bericht

Door een bericht te sturen kom je in contact met de aanbieder of makelaar van de woning.

Bericht versturen

Woningdetails

  • Huurprijs p.m. :

  • Oppervlakte :

  • Kamers :

  • Badkamers :

  • Slaapkamers :

  • € 1.092,00

  • 101 m2

  • 4

  • 1

  • 3

  • Woningtype :

  • Interieur :

  • Beschikbaar vanaf :

  • Beschikbaar tot :

  • Huisgenoot :

  • Huurwoning

  • n/a

  • 01-05-2026

  • n/a

  • 0

Faciliteiten

  • Badkamer :

  • Toilet :

  • Keuken :

  • Woonkamer :

  • Internet beschikbaar :

  • Privé

  • Privé

  • Privé

  • Privé

  • Ja

  • Huisdieren :

  • Roken :

  • Parkeerplaats :

  • Fietsenstalling :

  • Toegestaan

  • Toegestaan

  • Niet beschikbaar

  • Niet beschikbaar

Locatie