Huurflits
Jonker Fransstraat , 3031 AX Rotterdam
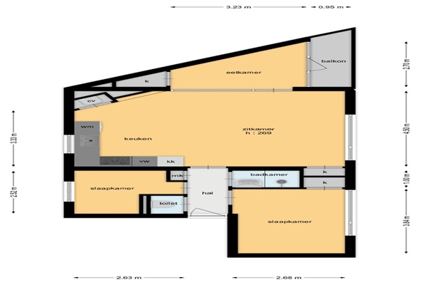
Niet geschikt voor woningdelers Indeling BEGANE GROND: Gesloten portiek met bellentableau en brievenbussen. Via het trappenhuis is er toegang tot alle verdiepingen. In de onderbouw is een afgesloten berging, toegankelijk via de achterzijde van het complex. EERSTE VERDIEPING: Eigen entree, hal die toegang biedt tot alle vertrekken en een separaat toilet. Lichte woonkamer met open keuken en toegang tot de werk-/studeerruimte. Vanuit dit vertrek is er toegang tot het balkon, gelegen op het oosten. De moderne keuken is onder andere voorzien van inductie kookplaat, combi oven, vaatwasser en een koelkast met vriesvak. Badkamer is voorzien van een douche, wastafelmeubel met spiegel en een designradiator. De hoofdslaapkamer ligt aan de straatzijde. De andere slaap-/ kleedkamer ligt aan de achterzijde van de woning. De woning is niet geschikt voor woningdelers
Huurprijs p.m. :
Oppervlakte :
Kamers :
Badkamers :
Slaapkamers :
€ 1.750,00
64 m2
4
1
2
Woningtype :
Interieur :
Beschikbaar vanaf :
Beschikbaar tot :
Huisgenoot :
Appartement
n/a
25-03-2026
n/a
0
Badkamer :
Toilet :
Keuken :
Woonkamer :
Internet beschikbaar :
Privé
Privé
Privé
Privé
Ja
Huisdieren :
Roken :
Parkeerplaats :
Fietsenstalling :
Verboden
Verboden
Niet beschikbaar
Niet beschikbaar