Huurflits
Willem de Zwijgerlaan , 1055 WT Amsterdam
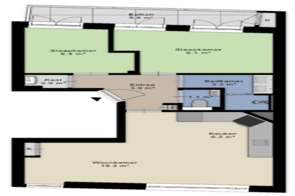
Het appartement heeft aan de voorzijde een ruime, lichte woonkamer met open keuken. Deze keuken is modern en volledig uitgerust, met een koel-vriescombinatie, wijnklimaatkast, inductiekookplaat, vaatwasser, combioven en afzuigkap. Aan de rustige achterzijde bevinden zich twee slaapkamers: de grootste van 8,6 m² biedt toegang tot het balkon op het westen, waar je in de middag- en avondzon kunt genieten. De tweede slaapkamer van 5,7 m² is perfect als werk- of logeerkamer.
Huurprijs p.m. :
Oppervlakte :
Kamers :
Badkamers :
Slaapkamers :
€ 2.200,00
50 m2
3
1
2
Woningtype :
Interieur :
Beschikbaar vanaf :
Beschikbaar tot :
Huisgenoot :
Appartement
n/a
24-03-2026
n/a
0
Badkamer :
Toilet :
Keuken :
Woonkamer :
Internet beschikbaar :
Privé
Privé
Privé
Privé
Ja
Huisdieren :
Roken :
Parkeerplaats :
Fietsenstalling :
Toegestaan
Toegestaan
Niet beschikbaar
Niet beschikbaar