header-logo2.png Huurflits

Appartement Gedempte Oude Gracht in Haarlem

Gedempte Oude Gracht , 2011 GV Haarlem

€ 1.750,00 excl. G/W/E

Beschrijving

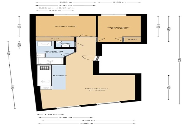
I N D E L I N G Dit rijksmonumentale appartement bevindt zich op de eerste verdieping en is bereikbaar via een royale entree. Hal, woonkeuken voorzien van airconditioning, badkamer met zeer ruime douche en ruimte voor was- en droogopstelling, apart toilet, grote slaapkamer met airconditioning en vaste kasten, en een kleinere slaapkamer eveneens met vaste kast. De nieuwe keuken is uitgerust met een Bora kookplaat met geïntegreerde afzuiging, vaatwasser en koelkast. Het appartement is volledig zelfstandig met eigen voorzieningen, waaronder een eigen meterkast en een eigen internet- en televisieaansluiting. Daarnaast zijn er in iedere ruimte vaste data-aansluitingen aanwezig ten behoeve van thuiswerken. Niet geschikt voor bewoning met kinderen

Verstuur een bericht

Door een bericht te sturen kom je in contact met de aanbieder of makelaar van de woning.

Bericht versturen

Woningdetails

  • Huurprijs p.m. :

  • Oppervlakte :

  • Kamers :

  • Badkamers :

  • Slaapkamers :

  • € 1.750,00

  • 75 m2

  • 3

  • 1

  • 2

  • Woningtype :

  • Interieur :

  • Beschikbaar vanaf :

  • Beschikbaar tot :

  • Huisgenoot :

  • Appartement

  • n/a

  • 01-05-2026

  • n/a

  • 0

Faciliteiten

  • Badkamer :

  • Toilet :

  • Keuken :

  • Woonkamer :

  • Internet beschikbaar :

  • Privé

  • Privé

  • Privé

  • Privé

  • Ja

  • Huisdieren :

  • Roken :

  • Parkeerplaats :

  • Fietsenstalling :

  • Verboden

  • Toegestaan

  • Niet beschikbaar

  • Niet beschikbaar

Locatie