Huurflits
Breestraat , 3811 BM Amersfoort
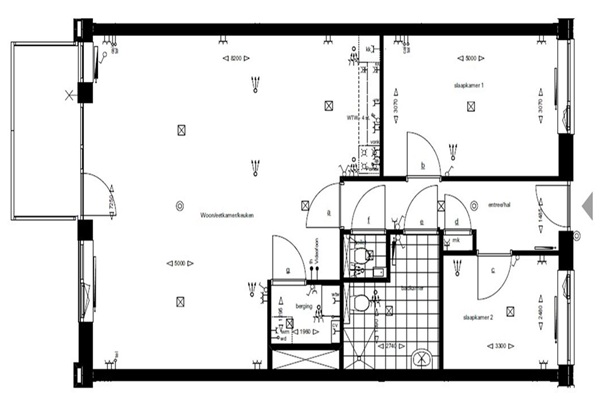
Indeling: Gedeelde portiek, met privé trapkast. Trap naar eerste verdieping: Overloop met toilet en wasruimte. Ruime lichte woonkamer van ca. 40m2 voorzien van openkeuken, palletkachel (ter overname) Keuken voorzien van Combioven, afzuigkap en kookplaat van eigenaar, koelkast ter overname van huidige huurder. Aangrenzend studeer/eetkamer van ca, 18,5m2 en dakterras. Tweede verdieping: 3 slaapkamers van ca. 14, 9 en 16m2 netto vloeroppervlakte. Moderne keurige badkamer. Derde verdieping is een ruime zolder zonder vaste trap. De bovenwoning heeft geen berging, fietsen dienen buiten te staan, wel een ruime bergzolder. Geen woningdelers, studenten of vrienden;
Huurprijs p.m. :
Oppervlakte :
Kamers :
Badkamers :
Slaapkamers :
€ 1.995,00
146 m2
5
1
3
Woningtype :
Interieur :
Beschikbaar vanaf :
Beschikbaar tot :
Huisgenoot :
Appartement
n/a
01-04-2026
n/a
0
Badkamer :
Toilet :
Keuken :
Woonkamer :
Internet beschikbaar :
Privé
Privé
Privé
Privé
Ja
Huisdieren :
Roken :
Parkeerplaats :
Fietsenstalling :
Verboden
Verboden
Niet beschikbaar
Niet beschikbaar