Huurflits
Onderwijsboulevard , 5223 DP Den Bosch
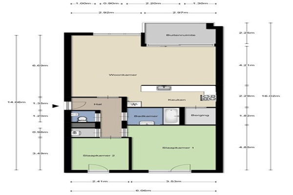
Indeling Gezamenlijke, royale en beveiligde entree met lift en trappenhuis. De hal (met videofoon) biedt toegang tot de ruime woonkamer (ca 33 m²) met veel lichtinval door grote ramen en schuifpui naar de loggia. Halfopen keuken met moderne inrichting met inbouwapparatuur (gaskookplaat, vaatwasser en afzuigkap) en deur naar praktische berging met aansluitpunt t.b.v. wasmachine / -droger. Aan de achterzijde van het appartement liggen de twee slaapkamers (respectievelijk ca 17 m² en ca 8 m²) met uitzicht op de mooi binnentuin van Carrefour. Moderne badkamer met ligbad en wastafel met -meubel. Separaat, modern toilet met fontein. Onderbouw Berging (ca 6 m2) en een eigen parkeerplaats in de afgesloten parkeerkelder. Buiten Loggia (ca 7 m2) met middag- en avondzon aan de woonkamer bereikbaar via schuifpui. Een grote, algemene binnentuin met jeu-de-boules baan en meerdere zitjes.
Huurprijs p.m. :
Oppervlakte :
Kamers :
Badkamers :
Slaapkamers :
€ 1.800,00
85 m2
3
1
2
Woningtype :
Interieur :
Beschikbaar vanaf :
Beschikbaar tot :
Huisgenoot :
Appartement
n/a
19-03-2026
n/a
0
Badkamer :
Toilet :
Keuken :
Woonkamer :
Internet beschikbaar :
Privé
Privé
Privé
Privé
Ja
Huisdieren :
Roken :
Parkeerplaats :
Fietsenstalling :
Toegestaan
Toegestaan
Niet beschikbaar
Niet beschikbaar