header-logo2.png Huurflits

Appartement Waldorpstraat in Den Haag

Waldorpstraat , 2521 CJ Den Haag

€ 1.700,00 excl. G/W/E

Beschrijving

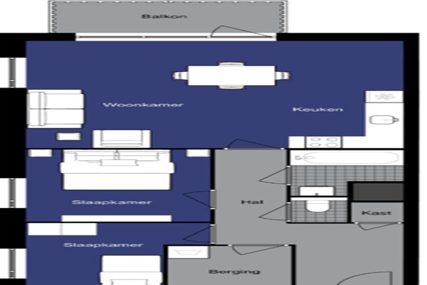
Dit appartement biedt 3 kamers met een gebruiksoppervlakte van circa 78 m². Het gebouw is gerealiseerd rond 2016. De indeling is praktisch en sluit goed aan bij het dagelijkse wooncomfort. Dankzij de gunstige ligging zijn voorzieningen zoals winkels, horeca en groen binnen korte afstand bereikbaar.

Verstuur een bericht

Door een bericht te sturen kom je in contact met de aanbieder of makelaar van de woning.

Bericht versturen

Woningdetails

  • Huurprijs p.m. :

  • Oppervlakte :

  • Kamers :

  • Badkamers :

  • Slaapkamers :

  • € 1.700,00

  • 78 m2

  • 3

  • 1

  • 2

  • Woningtype :

  • Interieur :

  • Beschikbaar vanaf :

  • Beschikbaar tot :

  • Huisgenoot :

  • Appartement

  • n/a

  • 18-03-2026

  • n/a

  • 0

Faciliteiten

  • Badkamer :

  • Toilet :

  • Keuken :

  • Woonkamer :

  • Internet beschikbaar :

  • Privé

  • Privé

  • Privé

  • Privé

  • Ja

  • Huisdieren :

  • Roken :

  • Parkeerplaats :

  • Fietsenstalling :

  • Toegestaan

  • Verboden

  • Niet beschikbaar

  • Niet beschikbaar

Locatie