header-logo2.png Huurflits

Appartement Prinses Marijkestraat in Den Haag

Prinses Marijkestraat , 2595 BK Den Haag

€ 2.284,00 excl. G/W/E

Beschrijving

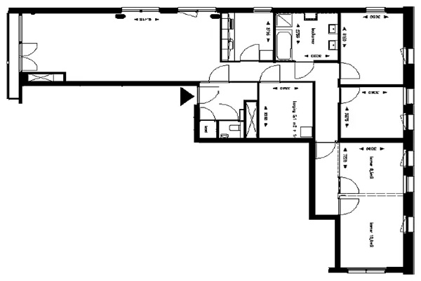
De plattegrond laat een royale woonkamer zien die dankzij de langgerekte vorm diverse opties biedt voor het creëren van een comfortabele zit- en eethoek. De grote raampartijen zorgen voor een prettige hoeveelheid daglicht, waardoor de ruimte open en uitnodigend aanvoelt. De woning is praktisch vormgegeven met een duidelijke scheiding tussen leef- en slaapgedeelten. Aan de centrale hal grenzen meerdere kamers, waaronder slaapkamers die door hun rechte wanden makkelijk in te richten zijn. De woning heeft 2 inwendige bergingen. De keuken en badkamer bevinden zich eveneens centraal in de woning, waardoor de looplijnen efficiënt zijn en het geheel een rustige indeling behoudt. De aanwezigheid van voldoende kamers maakt de woning geschikt voor uiteenlopende woonwensen, zoals een thuiskantoor, hobbyruimte of logeerkamer.

Verstuur een bericht

Door een bericht te sturen kom je in contact met de aanbieder of makelaar van de woning.

Bericht versturen

Woningdetails

  • Huurprijs p.m. :

  • Oppervlakte :

  • Kamers :

  • Badkamers :

  • Slaapkamers :

  • € 2.284,00

  • 131 m2

  • 3

  • 1

  • 2

  • Woningtype :

  • Interieur :

  • Beschikbaar vanaf :

  • Beschikbaar tot :

  • Huisgenoot :

  • Appartement

  • n/a

  • 14-03-2026

  • n/a

  • 0

Faciliteiten

  • Badkamer :

  • Toilet :

  • Keuken :

  • Woonkamer :

  • Internet beschikbaar :

  • Privé

  • Privé

  • Privé

  • Privé

  • Ja

  • Huisdieren :

  • Roken :

  • Parkeerplaats :

  • Fietsenstalling :

  • Toegestaan

  • Toegestaan

  • Niet beschikbaar

  • Niet beschikbaar

Locatie