header-logo2.png Huurflits

Appartement Maria Stuartplein in Den Haag

Maria Stuartplein , 2595 BW Den Haag

€ 1.166,00 excl. G/W/E

Beschrijving

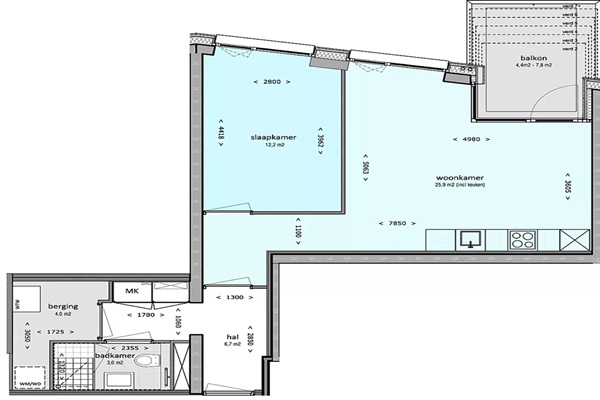
In het centrum van Den Haag ligt dit mooi afgewerkte tweekamerappartement van circa 52,7 m², gelegen op de 16e verdieping. De woning heeft een prettige indeling en precies de juiste grootte: niet te groot en niet te klein, maar comfortabel en praktisch om in te wonen. De woonkamer vormt het hart van het appartement en is een fijne plek om te ontspannen. Dankzij de ligging op de hogere verdieping geniet je hier van veel licht en een prettig uitzicht over de stad. De ruimte biedt voldoende plek voor een gezellige zit- en eethoek. De open leefkeuken is ideaal voor wie graag kookt. De keuken wordt compleet opgeleverd met diverse inbouwapparatuur, waaronder een inductiekookplaat met afzuigkap, een combimagnetron, een vaatwasser en een koel-vriescombinatie. Zo heb je alles bij de hand om uitgebreid te koken of snel een maaltijd te bereiden. Het appartement beschikt over een comfortabele slaapkamer met voldoende ruimte voor een tweepersoonsbed en een kledingkast. De kamer sluit goed aan op de rest van de woning en biedt een rustige plek om te ontspannen. De badkamer is netjes en modern afgewerkt. Hier vind je een wastafel met spiegel, een ruime inloopdouche en een toilet. Het ruime balkon ligt op het zuidwesten, waardoor je hier een groot deel van de dag van de zon kunt genieten. Een fijne plek om buiten te zitten en de dag rustig af te sluiten.

Verstuur een bericht

Door een bericht te sturen kom je in contact met de aanbieder of makelaar van de woning.

Bericht versturen

Woningdetails

  • Huurprijs p.m. :

  • Oppervlakte :

  • Kamers :

  • Badkamers :

  • Slaapkamers :

  • € 1.166,00

  • 53 m2

  • 2

  • 1

  • 1

  • Woningtype :

  • Interieur :

  • Beschikbaar vanaf :

  • Beschikbaar tot :

  • Huisgenoot :

  • Appartement

  • n/a

  • 01-04-2026

  • n/a

  • 0

Faciliteiten

  • Badkamer :

  • Toilet :

  • Keuken :

  • Woonkamer :

  • Internet beschikbaar :

  • Privé

  • Privé

  • Privé

  • Privé

  • Ja

  • Huisdieren :

  • Roken :

  • Parkeerplaats :

  • Fietsenstalling :

  • Toegestaan

  • Toegestaan

  • Niet beschikbaar

  • Niet beschikbaar

Locatie