Huurflits
Wijnand Nuijenstraat , 1061 VX Amsterdam
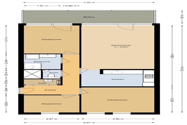
De woonkamer biedt volop mogelijkheden voor het creëren van een gezellige zit- en eethoek en is voorzien van een bank, eettafel, tv-meubel en televisie. Dankzij de praktische indeling voelt de woning ruim en functioneel aan. Van de drie slaapkamers zijn er twee ingericht met een tweepersoonsbed en een kledingkast. In één van deze kamers is tevens een televisie aanwezig. De derde slaapkamer kan naar wens worden ingericht, bijvoorbeeld als kinder-, werk- of hobbykamer. Hierdoor is de woning eenvoudig aan te passen aan verschillende woonwensen en levensfasen. De keuken en sanitaire voorzieningen zijn praktisch ingericht en bieden alles wat nodig is voor comfortabel dagelijks gebruik. In de badkamer bevinden zich tevens een wasmachine en droger, wat extra gemak biedt.
Huurprijs p.m. :
Oppervlakte :
Kamers :
Badkamers :
Slaapkamers :
€ 2.500,00
87 m2
4
1
3
Woningtype :
Interieur :
Beschikbaar vanaf :
Beschikbaar tot :
Huisgenoot :
Appartement
n/a
26-02-2026
n/a
0
Badkamer :
Toilet :
Keuken :
Woonkamer :
Internet beschikbaar :
Privé
Privé
Privé
Privé
Ja
Huisdieren :
Roken :
Parkeerplaats :
Fietsenstalling :
Toegestaan
Toegestaan
Niet beschikbaar
Niet beschikbaar