header-logo2.png Huurflits

Appartement Elckerlijcstraat in Amsterdam

Elckerlijcstraat , 1055 AN Amsterdam

€ 2.700,00 excl. G/W/E

Beschrijving

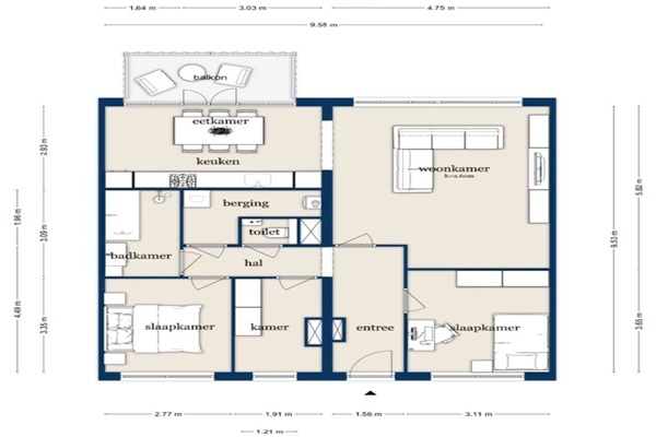
Indeling Algemene entree op de begane grond of binnenkomst via parkeergarage. Lift naar de woning op de tweede etage. Hal met toegang tot alle vertrekken. Aan de achterzijde van de woning is de ruime woonkamer met open keuken en openslaande deuren naar het zonnige balkon gelegen op het westen (inclusief zonwering). De keuken is voorzien van een koel-/vriescombinatie, 4-pitsgaskookplaat, vaatwasser, oven en afzuigkap. Aan de entreezijde van het appartement bevinden zich drie ruime slaapkamers, waarvan twee voorzien van praktische inbouwkasten. Badkamer met ligbad, inloopdouche en wastafelmeubel. Inpandige bergruimte met wasmachine (inclusief) en legplanken. Separaat toilet met fonteintje. Privé parkeerplaats in de parkeergarage. Geen delers, geen studenten aub.

Verstuur een bericht

Door een bericht te sturen kom je in contact met de aanbieder of makelaar van de woning.

Bericht versturen

Woningdetails

  • Huurprijs p.m. :

  • Oppervlakte :

  • Kamers :

  • Badkamers :

  • Slaapkamers :

  • € 2.700,00

  • 93 m2

  • 4

  • 1

  • 3

  • Woningtype :

  • Interieur :

  • Beschikbaar vanaf :

  • Beschikbaar tot :

  • Huisgenoot :

  • Appartement

  • n/a

  • 26-02-2026

  • n/a

  • 0

Faciliteiten

  • Badkamer :

  • Toilet :

  • Keuken :

  • Woonkamer :

  • Internet beschikbaar :

  • Privé

  • Privé

  • Privé

  • Privé

  • Ja

  • Huisdieren :

  • Roken :

  • Parkeerplaats :

  • Fietsenstalling :

  • Toegestaan

  • Toegestaan

  • Niet beschikbaar

  • Niet beschikbaar

Locatie