Huurflits
Hogewerf , 1082 NG Amsterdam
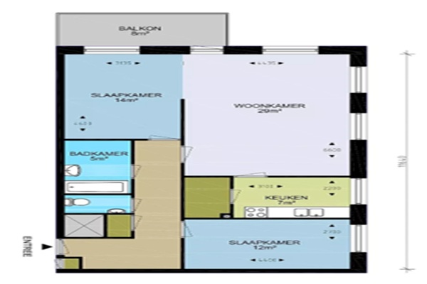
Aan de rand van Amsterdam ligt dit comfortabele en lichte 3-kamer appartement van 87 m². Een fijne woning met een prettige indeling, twee ruime slaapkamers, een gesloten keuken en een balkon. Je woont hier rustig, maar met alles wat je nodig hebt dichtbij. De woonkamer is licht en ruim, circa 29 m², en geeft direct toegang tot het balkon. Een fijne plek om thuis te komen of om vrienden te ontvangen. De gesloten keuken is praktisch ingericht en voorzien van een gaskookplaat, elektrische oven, spoelbak en afzuigkap. Vanuit de keuken heb je alle ruimte om uitgebreid te koken. Het appartement beschikt over twee slaapkamers. De grootste slaapkamer is circa 14 m². De tweede slaapkamer van ongeveer 12 m² ligt en suite aan de woonkamer en is ook goed te gebruiken als werk- of studeerkamer. De badkamer is uitgerust met een ligbad, wastafel en designradiator. Het toilet bevindt zich in een separate ruimte.
Huurprijs p.m. :
Oppervlakte :
Kamers :
Badkamers :
Slaapkamers :
€ 1.807,00
87 m2
3
1
2
Woningtype :
Interieur :
Beschikbaar vanaf :
Beschikbaar tot :
Huisgenoot :
Appartement
n/a
01-04-2026
n/a
0
Badkamer :
Toilet :
Keuken :
Woonkamer :
Internet beschikbaar :
Privé
Privé
Privé
Privé
Ja
Huisdieren :
Roken :
Parkeerplaats :
Fietsenstalling :
Toegestaan
Toegestaan
Niet beschikbaar
Niet beschikbaar