header-logo2.png Huurflits

Appartement Sumatrastraat in Amsterdam

Sumatrastraat , 1095 HV Amsterdam

€ 2.575,00 excl. G/W/E

Beschrijving

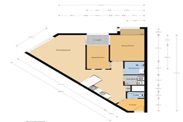
Prachtig gemeubileerd 3-kamerappartement (ca. 70 m²) (2 slaapkamers) met een unieke ligging op de 4e en bovenste verdieping, voorzien van een balkon op het zuidwesten en twee gemeenschappelijke dakterrassen. - Stijlvolle open keuken, voorzien van vaatwasser, koelkast, gaskookplaat en ingebouwde oven. - Badkamer met douche en wastafel met opbergruimte, - Inpandige berging met wasmachine, - Binnenbalkon

Verstuur een bericht

Door een bericht te sturen kom je in contact met de aanbieder of makelaar van de woning.

Bericht versturen

Woningdetails

  • Huurprijs p.m. :

  • Oppervlakte :

  • Kamers :

  • Badkamers :

  • Slaapkamers :

  • € 2.575,00

  • 70 m2

  • 3

  • 1

  • 2

  • Woningtype :

  • Interieur :

  • Beschikbaar vanaf :

  • Beschikbaar tot :

  • Huisgenoot :

  • Appartement

  • n/a

  • 01-04-2026

  • n/a

  • 0

Faciliteiten

  • Badkamer :

  • Toilet :

  • Keuken :

  • Woonkamer :

  • Internet beschikbaar :

  • Privé

  • Privé

  • Privé

  • Privé

  • Ja

  • Huisdieren :

  • Roken :

  • Parkeerplaats :

  • Fietsenstalling :

  • Toegestaan

  • Toegestaan

  • Niet beschikbaar

  • Niet beschikbaar

Locatie