header-logo2.png Huurflits

Appartement Clioplein in Den Haag

Clioplein , 2511 GL Den Haag

€ 2.405,00 excl. G/W/E

Beschrijving

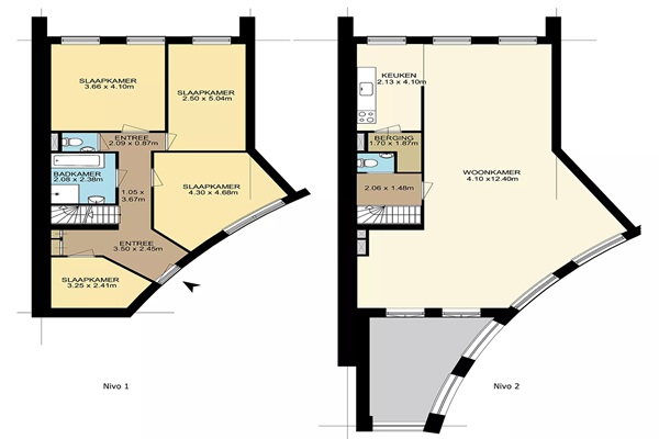
Een vijfkamerwoning met twee woonlagen. De woning is ingedeeld met een woonkamer, een keuken, meerdere slaapkamers, een badkamer en een separaat toilet. De ruimtes zijn verdeeld over twee niveaus, met op de ene verdieping de woonfuncties en op de andere verdieping de slaapvertrekken. De plattegrond geeft de huidige indeling weer.

Verstuur een bericht

Door een bericht te sturen kom je in contact met de aanbieder of makelaar van de woning.

Bericht versturen

Woningdetails

  • Huurprijs p.m. :

  • Oppervlakte :

  • Kamers :

  • Badkamers :

  • Slaapkamers :

  • € 2.405,00

  • 156 m2

  • 5

  • 1

  • 4

  • Woningtype :

  • Interieur :

  • Beschikbaar vanaf :

  • Beschikbaar tot :

  • Huisgenoot :

  • Appartement

  • n/a

  • 01-03-2026

  • n/a

  • 0

Faciliteiten

  • Badkamer :

  • Toilet :

  • Keuken :

  • Woonkamer :

  • Internet beschikbaar :

  • Privé

  • Privé

  • Privé

  • Privé

  • Ja

  • Huisdieren :

  • Roken :

  • Parkeerplaats :

  • Fietsenstalling :

  • Toegestaan

  • Toegestaan

  • Niet beschikbaar

  • Niet beschikbaar

Locatie