Huurflits
Korte Houtstraat , Den Haag
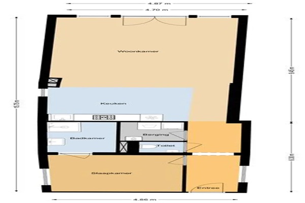
De woningen zijn opgeleverd met een smaakvolle pvc vloerbedekking, volledig ingerichte keuken, badkamer met douche en wastafel, separaat toilet met fonteintje, vloerverwarming, goede isolatie. Alle appartementen kunnen beschikken over een eigen berging in de kelder, hebben tenminste Energielabel A, er is een gemeenschappelijke hal, lift, fietsenstalling en containerruimte. Het voorschot servicekosten is voor zowel de algemene kosten (schoonmaak, glasbewassing, installaties e.d.) als voor het waterverbruik van de woning. Voor elektra en gas zijn eigen meters. De appartementen zijn voorzien van Ziggo aansluitpunten.
Huurprijs p.m. :
Oppervlakte :
Kamers :
Badkamers :
Slaapkamers :
€ 1.650,00
76 m2
2
1
1
Woningtype :
Interieur :
Beschikbaar vanaf :
Beschikbaar tot :
Huisgenoot :
Appartement
n/a
01-03-2026
n/a
0
Badkamer :
Toilet :
Keuken :
Woonkamer :
Internet beschikbaar :
Privé
Privé
Privé
Privé
Ja
Huisdieren :
Roken :
Parkeerplaats :
Fietsenstalling :
Toegestaan
Toegestaan
Niet beschikbaar
Niet beschikbaar