header-logo2.png Huurflits

Huis Ivoorwit in Zoetermeer

Ivoorwit , 2718 AG Zoetermeer

€ 1.538,00 excl. G/W/E

Beschrijving

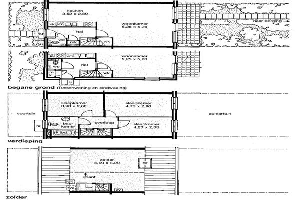
De woningen aan Glanswit, Hagelwit en Ivoorwit bieden veel leefruimte. De benedenverdieping van 37 m² bestaat uit een lichte woonkamer met halfopen keuken en een praktische provisiekast onder de trap. De eerste verdieping beschikt over drie slaapkamers en een recent gerenoveerde badkamer met ligbad, wastafel en tweede toilet. Daarnaast is er een ruime, multifunctionele zolder van ruim 28 m² beschikbaar. De drie slaapkamers zijn goed bemeten en geschikt voor gezinnen. De badkamer is modern en compleet met ligbad, wastafel en tweede toilet, waardoor comfort en functionaliteit hand in hand gaan. Elke woning heeft een voortuin en een achtertuin met praktische berging voor fietsen of gereedschap. Het biedt zowel buitenruimte als extra opslagmogelijkheden. Elke woning heeft een voortuin en een achtertuin met praktische berging voor fietsen of gereedschap. Het biedt zowel buitenruimte als extra opslagmogelijkheden.

Verstuur een bericht

Door een bericht te sturen kom je in contact met de aanbieder of makelaar van de woning.

Bericht versturen

Woningdetails

  • Huurprijs p.m. :

  • Oppervlakte :

  • Kamers :

  • Badkamers :

  • Slaapkamers :

  • € 1.538,00

  • 109 m2

  • 4

  • 1

  • 3

  • Woningtype :

  • Interieur :

  • Beschikbaar vanaf :

  • Beschikbaar tot :

  • Huisgenoot :

  • Huurwoning

  • n/a

  • 01-05-2026

  • n/a

  • 0

Faciliteiten

  • Badkamer :

  • Toilet :

  • Keuken :

  • Woonkamer :

  • Internet beschikbaar :

  • Privé

  • Privé

  • Privé

  • Privé

  • Ja

  • Huisdieren :

  • Roken :

  • Parkeerplaats :

  • Fietsenstalling :

  • Toegestaan

  • Toegestaan

  • Niet beschikbaar

  • Niet beschikbaar

Locatie