header-logo2.png Huurflits

Appartement Leenhofstraat in Amsterdam

Leenhofstraat , 1067 KW Amsterdam

€ 1.750,00 excl. G/W/E

Beschrijving

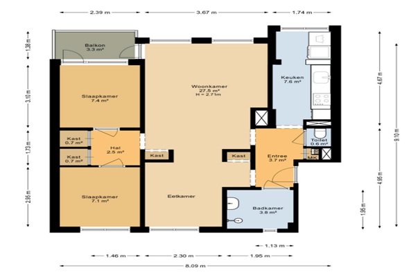
Indeling: Via de trap kom je op de vierde etage. Je komt binnen in de hal met de meterkast. De woonkamer geeft toegang tot het balkon. Er zijn twee slaapkamers..De aparte keuken is voorzien van inbouwapparatuur zoals een koelkast, kookplaat, afzuigkap, vaatwasser en een afzuigkap. De badkamer is voorzien van een douche en wastafel. Er is een apart toilet Profiel gewenste huurder; uitsluitend werkende kandidaten;

Verstuur een bericht

Door een bericht te sturen kom je in contact met de aanbieder of makelaar van de woning.

Bericht versturen

Woningdetails

  • Huurprijs p.m. :

  • Oppervlakte :

  • Kamers :

  • Badkamers :

  • Slaapkamers :

  • € 1.750,00

  • 68 m2

  • 3

  • 1

  • 2

  • Woningtype :

  • Interieur :

  • Beschikbaar vanaf :

  • Beschikbaar tot :

  • Huisgenoot :

  • Appartement

  • n/a

  • 01-04-2026

  • n/a

  • 0

Faciliteiten

  • Badkamer :

  • Toilet :

  • Keuken :

  • Woonkamer :

  • Internet beschikbaar :

  • Privé

  • Privé

  • Privé

  • Privé

  • Ja

  • Huisdieren :

  • Roken :

  • Parkeerplaats :

  • Fietsenstalling :

  • Toegestaan

  • Toegestaan

  • Niet beschikbaar

  • Niet beschikbaar

Locatie