Huurflits
Gerard Philipslaan , 5616 TX Eindhoven
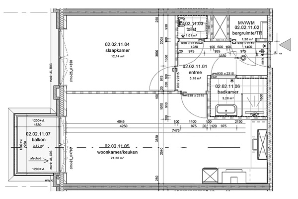
Je komt binnen in de entree die toegang geeft tot de verschillende ruimtes. De woonkamer met open keuken vormt het hart van de woning: licht, praktisch en perfect om na je werk te ontspannen of vrienden te ontvangen. Vanuit de woonkamer stap je zo het balkon op, een fijne plek in de ochtend of een drankje in de avondzon. De slaapkamer is ruim genoeg voor een tweepersoonsbed en kastruimte en voelt rustig aan als plek om je even terug te trekken. De badkamer is netjes uitgevoerd en er is een separaat toilet. Daarnaast is er een interne berging met aansluiting voor de wasmachine, zodat je alles netjes uit het zicht kunt houden.
Huurprijs p.m. :
Oppervlakte :
Kamers :
Badkamers :
Slaapkamers :
€ 950,00
48 m2
2
1
1
Woningtype :
Interieur :
Beschikbaar vanaf :
Beschikbaar tot :
Huisgenoot :
Appartement
n/a
01-04-2026
n/a
0
Badkamer :
Toilet :
Keuken :
Woonkamer :
Internet beschikbaar :
Privé
Privé
Privé
Privé
Ja
Huisdieren :
Roken :
Parkeerplaats :
Fietsenstalling :
Toegestaan
Toegestaan
Niet beschikbaar
Niet beschikbaar