header-logo2.png Huurflits

Appartement Kribbestraat in Amsterdam

Kribbestraat , 1079 XB Amsterdam

€ 2.750,00 excl. G/W/E

Beschrijving

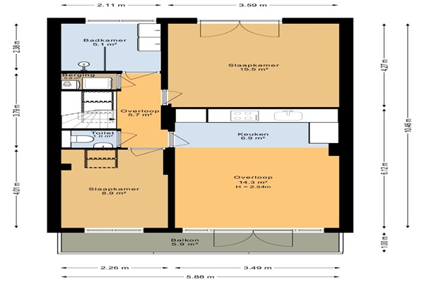
Het appartement ligt op de derde en tevens bovenste verdieping. Via een gedeelde entree kom je met de trap naar de derde verdieping. Je komt binnen in de hal welke toegang geeft tot alle ruimtes. In d ehal is een apart toilet met een fonteintje. De woonkamer met open keuken is licht en ruim. De keuken in voorzien van inbouwapparatuur zoals een koel-vries combinatie, gaskookplaat, combimagnteron, afzuigkap en een vaatwasser. Er zijn twee slaapkamers waardoor de woning ook geschikt is voor twee werkende delers. De badkamer heeft een douche, wastafel en een handoekradiator. Op dit moment wordt de woning verduurzaamd en krijgt daarmee een toekomstbestendig en energiezuiniger karakter. Deze verduurzaming zorgt niet alleen voor meer wooncomfort, maar ook voor lagere energielasten en een duurzamere manier van wonen in de populaire Rivierenbuurt.

Verstuur een bericht

Door een bericht te sturen kom je in contact met de aanbieder of makelaar van de woning.

Bericht versturen

Woningdetails

  • Huurprijs p.m. :

  • Oppervlakte :

  • Kamers :

  • Badkamers :

  • Slaapkamers :

  • € 2.750,00

  • 56 m2

  • 3

  • 1

  • 2

  • Woningtype :

  • Interieur :

  • Beschikbaar vanaf :

  • Beschikbaar tot :

  • Huisgenoot :

  • Appartement

  • n/a

  • 18-02-2026

  • n/a

  • 0

Faciliteiten

  • Badkamer :

  • Toilet :

  • Keuken :

  • Woonkamer :

  • Internet beschikbaar :

  • Privé

  • Privé

  • Privé

  • Privé

  • Ja

  • Huisdieren :

  • Roken :

  • Parkeerplaats :

  • Fietsenstalling :

  • Toegestaan

  • Toegestaan

  • Niet beschikbaar

  • Niet beschikbaar

Locatie