Huurflits
Jasonstraat , 1076 PK Amsterdam
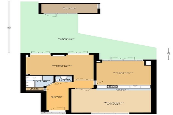
Indeling: Het appartement heeft een eigen entree en is gelegen op de begane grond. De hal biedt toegang tot de ruime woonkamer en keuken, beide aan de voorzijde van het appartement. De keuken is uitgerust met moderne apparatuur, zoals een inductiekookplaat, oven, vaatwasser, koelkast en aparte vriezer. Beide slaapkamers zijn zeer ruim en grenzen aan de tuin van het huis die ook een royale afmeting heeft. Achterin de tuin is een berging. De douche bevindt zich aan de linkerkant van het huis en heeft twee wastafels en ruimte voor een wasmachine en droger. Er is een separate toilet. Woning is geschikt voor delers.
Huurprijs p.m. :
Oppervlakte :
Kamers :
Badkamers :
Slaapkamers :
€ 2.450,00
55 m2
3
1
2
Woningtype :
Interieur :
Beschikbaar vanaf :
Beschikbaar tot :
Huisgenoot :
Appartement
n/a
18-02-2026
n/a
0
Badkamer :
Toilet :
Keuken :
Woonkamer :
Internet beschikbaar :
Privé
Privé
Privé
Privé
Ja
Huisdieren :
Roken :
Parkeerplaats :
Fietsenstalling :
Toegestaan
Toegestaan
Niet beschikbaar
Niet beschikbaar