header-logo2.png Huurflits

Appartement Delflandplein in Amsterdam

Delflandplein , Amsterdam

€ 2.200,00 excl. G/W/E

Beschrijving

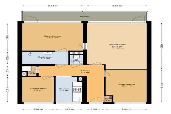
Dit appartement is alleen te huur aan drie woningdelers!!!!! Niet meer en niet minder!!!! Indeling: Via de afgesloten centrale hal kom je met de lift op de galerij. Via deze hal op de begane grond zijn ook de bergingen bereikbaar. Je komt binnen in de hal welke toegang geeft tot alle ruimtes. Er is een gezamenlijke woonkamer welke toegang geeft tot het balkon. Er zijn drie slaapkamers. De keuke is voorzien van inbouwapparatuur met een koel-vries combi, vaatwasser, gaskookplaat, afzuigkap en een combi-oven. De badkamer heeft een douche en wastafel. Het toilet is apart.

Verstuur een bericht

Door een bericht te sturen kom je in contact met de aanbieder of makelaar van de woning.

Bericht versturen

Woningdetails

  • Huurprijs p.m. :

  • Oppervlakte :

  • Kamers :

  • Badkamers :

  • Slaapkamers :

  • € 2.200,00

  • 80 m2

  • 4

  • 1

  • 3

  • Woningtype :

  • Interieur :

  • Beschikbaar vanaf :

  • Beschikbaar tot :

  • Huisgenoot :

  • Appartement

  • n/a

  • 18-02-2026

  • n/a

  • 0

Faciliteiten

  • Badkamer :

  • Toilet :

  • Keuken :

  • Woonkamer :

  • Internet beschikbaar :

  • Privé

  • Privé

  • Privé

  • Privé

  • Ja

  • Huisdieren :

  • Roken :

  • Parkeerplaats :

  • Fietsenstalling :

  • Verboden

  • Toegestaan

  • Niet beschikbaar

  • Niet beschikbaar

Locatie