header-logo2.png Huurflits

Appartement Middellandstraat in Rotterdam

Middellandstraat , 3021 BL Rotterdam

€ 1.500,00 excl. G/W/E

Beschrijving

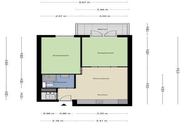
LET OP: De woning is ENKEL beschikbaar voor 2 STUDENTEN die niet uit gemeente Rotterdam komt en waarvan de duur van zijn/ haar studie tot maximaal 31-08-2026 duurt! Indeling Gedeelde entree en trapopgang. Eigen entree in de woonruimte met open keuken. De keuken is uitgerust met onder andere een koelkast, vriezer, combi-oven, inductie kookplaat en een vaatwasser. Twee slaapkamers waarvan 1 slaapkamer toegang biedt tot het balkon. De badkamer is voorzien van een douche, een wastafelmeubel met spiegel en een toilet. Aparte ruimte met wasmachine-aansluiting

Verstuur een bericht

Door een bericht te sturen kom je in contact met de aanbieder of makelaar van de woning.

Bericht versturen

Woningdetails

  • Huurprijs p.m. :

  • Oppervlakte :

  • Kamers :

  • Badkamers :

  • Slaapkamers :

  • € 1.500,00

  • 50 m2

  • 3

  • 1

  • 2

  • Woningtype :

  • Interieur :

  • Beschikbaar vanaf :

  • Beschikbaar tot :

  • Huisgenoot :

  • Appartement

  • n/a

  • 18-02-2026

  • n/a

  • 0

Faciliteiten

  • Badkamer :

  • Toilet :

  • Keuken :

  • Woonkamer :

  • Internet beschikbaar :

  • Privé

  • Privé

  • Privé

  • Privé

  • Ja

  • Huisdieren :

  • Roken :

  • Parkeerplaats :

  • Fietsenstalling :

  • Verboden

  • Verboden

  • Niet beschikbaar

  • Niet beschikbaar

Locatie